A house that rests like a cloud


Along the lakeside of Jeonju’s new urban district, this house sits quietly, as if a cloud had drifted down to the water’s edge. A gently rising curved roof lifts toward the sky, while a pure white façade catches the lake’s reflected light. Here, a traditional sensibility meets contemporary restraint, and the atmosphere of the city softens into the calm of the landscape.
The clients, a young couple with a deep affinity for Korean tradition, wanted a retreat where they could step out of a busy daily rhythm without severing their connection to the city. The site lies slightly apart from the district’s bustle, at the boundary where urban fabric gives way to the lake’s stillness. It becomes a threshold: both sheltered and open, private yet quietly connected to its surroundings.







The most striking gesture of the house is the sweeping curved roof, visible from afar. Drawing on the upward lift often found in traditional Korean rooflines, the eave rises like a poised wing, forming a light silhouette against the horizon. Beneath it sits a restrained white volume, anchored to a raised plinth. Modest in massing yet deliberate in proportion, the composition holds a traditional spirit within a clear modern structure.
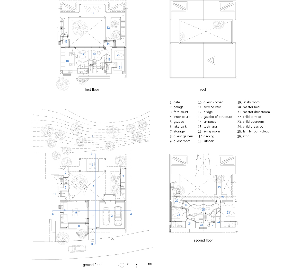
At the center is an open, numaru-like space called the “Gate of Life.” Set at the seam between interior and exterior, it frames the meeting point of city and nature. The architect describes it as an “architectural viewfinder”: a device that edits the outside world and brings it into the private realm. At once a filter and a threshold, it allows enclosure and openness—shelter and exposure—to coexist.













Beyond the gate, a courtyard is held on three sides. Though carefully composed, the garden is tuned to feel unforced—an open void that buffers the house from its context while remaining open to sky and planting. It becomes the home’s primary breathing space: a place for pause, conversation, and quiet rituals of everyday life.
Above the courtyard, a second curved roof seems to float over the family room. The space reads as lightly suspended—an architectural echo of the name HO-UN, “cloud over the lake.”
Through a contemporary re-reading of Korea’s traditional architectural language, the house offers a calm shelter from urban turbulence—grounded in cultural memory, yet clear-eyed in its present-day form.

Project: HO-UN / Location: Jang-dong, Deokjin-gu, Jeonju-si, Jeollabuk-do, Republic of Korea / Architect: IROJE KHM Architects (HyoMan Kim) / Project team: NaeJung Park, GaYoung Kim, HeeJu Lee / Structural engineer: Eun Structre Co.Ltd. / Mechanical and electrical engineer: Yousungeng / Landscape architect: Openness Studio / Contractor: ENDO construction / Use: private house / Site area: 377.60m² / Bldg. area: 148.37m² / Gross floor area: 383.13m² / Bldg. scale: three stories above ground / Structure: RC / Exterior finishing: exposed concrete / Interior finishing: epoxy paint, vinyl paint / Completion: 2025 / Photograph: ©Sergio Pirrone (courtesy of the architect)


































