Intertwined with the aged spatial rhythms of the community


Located in the ancient town of Shaxi (沙溪) in Dali, Yunnan, House No. 8 in Dongnan Village sits on the southwestern Yunnan Plateau, an area known for its year-round spring climate. With its rich natural environment of mountains and rivers, this region has long been home to various ethnic minorities, among them the Bai people. The Bai have traditionally embraced clear water and white garments as cultural symbols, and their songs, dances, and festivals have been deeply woven into daily life. It is said that “those who walk dance, and those who speak sing,” capturing the spirit of the place. Thanks to this generous natural setting and open communal culture, Shaxi has preserved the distinct character of an ancient village for more than a thousand years.











House No. 8 in Dongnan Village, located about two kilometers from the town square, is immersed in this culture of daily life. Every evening, the homeowner joins friends in the square to play shuttlecock and end the day. Gathering in the square is a familiar sight in Shaxi, where daily routines are intertwined with the rhythms of the community. The house, situated within this flow of collective life, becomes a vivid part of the living landscape.
One day, the architect encountered Shaxi’s traditional wooden stage, the Kuige Pavilion, and was struck by its distinctive roof form resembling a bird taking flight. Its elegant and dynamic eaves gave the stage a presence that extended beyond a performance venue, transforming it into a place where heaven and earth, the human and the divine, meet. The golden-toned pavilion, imprinted deeply in the architect’s memory, later became a design motif for a contemporary house in dialogue with the ancient structure.



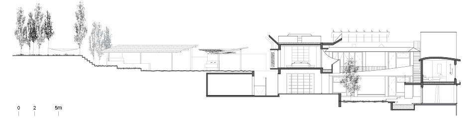
Dali is a high-altitude basin with intense sunlight, where shade becomes a precious refuge. The three-dimensionally curved eaves of the first and second floors resemble a bird resting atop the house. They block sunlight and create shade while also responding to the presence of the Kuige stage in the street beyond. High clerestory windows in the tall chimney-like space bring in warm light and air, characteristic of Dali’s spring-like climate. The two tower-like volumes and the courtyard with window hoods form a composition in which wind, rain, and shade become interwoven with daily living. This shows how even a small and modest house can expand its boundaries when the subtle relationships of time, space, atmosphere, and emotion are carefully tuned.
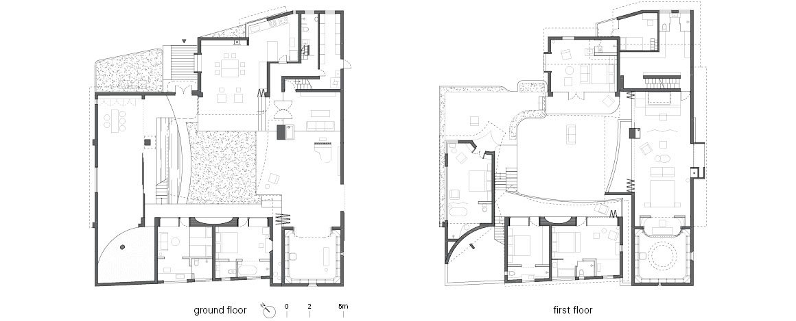
Around the front courtyard are arranged the yoga and meditation room, living room, master bedroom, dining room, guest room, and several service spaces. At the rear of the site are a storage room, wine cellar, drying area, woodworking studio, and a small campsite. In this house, where daily rhythms come together, a range of emotional tones emerges. Architecture responds to these subtle relationships and conveys a sense of living presence.






Project: No. 8 House in Dongnan Village / Location: Shaxi, Dali, Yunnan, China / Architects: xian Architects (Wang Yanshi, Bai He) / Project team: Dong Zhiyuan, Liu Yifeng, Zhou Mengzheng, Li Yin, Wu Jiahui, Chen Jinkai / Engineering: Gao Xuemei, structural designer_Li ping / Use: house / Site area: 990m² / Gross floor area: 733m² / Completion: 2025 / Photograph: ©Liu Guowei, Xia Zhi (courtesy of the architect), ©Liang Jiajian (courtesy of the architect)


































