A corridor of scenery along the of pets’ movement

Located in an aging industrial district of Xiaoshan, Hangzhou, Sixiangli Cultural Park is a mixed-use community space created through the adaptive reuse of a former toy factory. Home to the brand Healing Pets, the project brings together people who share a love for animals, fostering a sense of warmth and solidarity generated by a human and pet community, softening the city’s otherwise cold and unfamiliar atmosphere. Here, visitors form friendships, learn together, and engage through shared experiences, shaping a new lifestyle in which humans and pets coexist. Within these relationships between people and their companion animals, positive connections emerge—linking individuals to one another, to the community, and ultimately to the city itself.







The overall design strategy begins with the conditions of the existing building. Useful elements of the original structure were retained, with key roof components left exposed, while new structures were introduced through carefully articulated connections. This approach reflects a sustainable design concept in which old and new intersect and intertwine, revealing organic and open spatial relationships throughout the project.
A palette of tactile, natural materials—including washed stone finishes, exposed aggregate concrete, textured paint, and marine-grade panels—adds vitality to the space. Rough-washed stone used for the interior bar, seating, and flooring forms a restrained backdrop, while exposed aggregate concrete floors and gray-toned stone walls resonate with one another to create an outdoor-like atmosphere. These coarse textures provide surface friction, preventing pets from slipping and making stains less noticeable—an important practical consideration. Wall systems and modular furniture are constructed using warm-toned marine-grade panels that harmonize with the existing timber roof structure. Over time, weathering will further enrich the character and depth of these materials.









A pet-friendly ramp structure offers a brand experience that expands from two dimensions into three. Graphic elements emphasizing depth and volume introduce an engaging visual language throughout the space. Symbols that combine functionality and symbolism add layers to the brand identity, while accent colors in blue and yellow—tones that pets are particularly sensitive to—along with compositions of lines and planes, convey a relaxed yet lively sensibility. This integration of visual languages enhances the spatial coherence and leaves a strong, lasting impression.
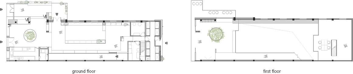
Within the generous ceiling height, the building is organized into two levels, opening up the interior while expanding its functional possibilities. The café area at the entrance, the central activity zone, and the program spaces toward the rear are distinct yet connected through a clear and orderly circulation system. Conceived as a courtyard-like garden, the café forms a “corridor of scenery” that blurs the boundary between interior and exterior. An open entrance is shaped around a large central tree, where natural stone textures further respond to the sensory world of pets.



The central space, preserved from the original structure, is connected by a ramp spanning the first and second floors. Pets and their owners move up and down as if strolling along a gentle hillside, while light filters in from above, marking the passage of time from morning to dusk. Deeper inside, the program spaces take the form of stacked square volumes. The first floor houses a pet hotel and grooming facilities, with flexible glass partitions that allow the spaces to be reconfigured as needed. On the second floor, offices overlook the entire interior, enabling seamless communication and management.
Small yet thoughtful details reflecting pets’ behaviors are integrated throughout the design. Spaces beneath benches are left open, and long, continuous seating allows pets to move freely. Meanwhile, operational areas are supported by movable furniture, ensuring flexibility and adaptability in daily use.
Project: Healing Pets / Location: Xixiangli Cultural and Creative Park, Xiaoshan District, Hangzhou City, Zhejiang Province, China / Architect: Informal Design (Sheng Wang) / Project team: Zhihang Luo, Ning Ye, Huangying Cheng / Graphic Design: Liz Zheng, Yanhong Liu / Client: healing pets / Use: pet-friendly social space / Design content: brand, visual identity, architecture, space, furniture / Gross floor area: 300m² / Design: 2024.3.~2024.5. / Completion: 2024.8. / Photograph: ©Heishui (courtesy of the architect)


































