Trailing imagery along the descent


“Think about it. How did we get here?”
— From the film “Inception”
In Korean, the word ‘Gaenggo’ refers to the act of reconsidering or reflecting deeply on a matter. Fittingly, we rarely remember the exact beginning of a dream; instead, we simply find ourselves in the middle of a narrative. Memory of a place functions much the same way. The scenes we pass through are not merely linear records, but lingering imprints of sensations woven into our subconscious.
Gaenggo Banjiha resides within this subconscious realm. It is not a place defined by a single, static frame but by the continuous movement that shapes its identity. By allowing the body to fully experience the landscape between the earth and the sea, the architecture guides visitors through a sequence that transcends familiar reality.






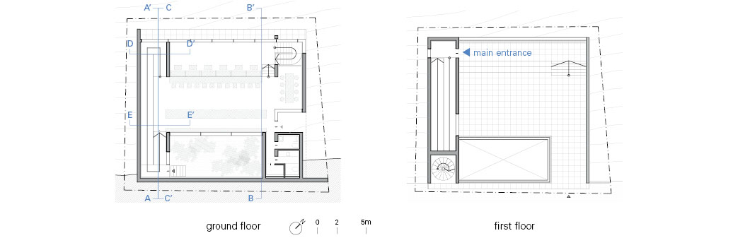
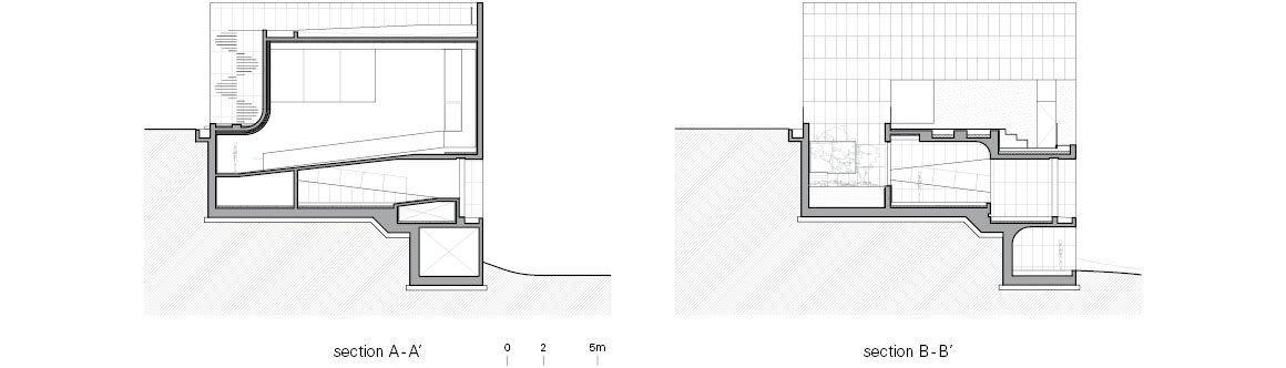
At the dead end of a coastal road in Geoje, Gaenggo Banjiha sits low, crouching against the earth. Concealing its true form, it presents a massive concrete wall and a spiral staircase that intentionally obstructs the view of the sea. The moment expectations of an open vista are subverted, one’s dulled everyday senses are suddenly sharpened.
Looking downward, a sunken garden carved deep into the ground reveals itself. Extending the gaze across this void, layers of activity emerge: the rhythmic bustle of the kitchen and guests enjoying their coffee, framed against the sloping dunes and the sea beyond. Unlike conventional buildings, this descent into the earth creates a profound layering of scenery, initiating a sensory immersion into the site’s unique identity even before entering the space.













The journey continues inward. A long ramp begins at the entrance, leading toward the main hall in a single, uninterrupted flow. There is no need for conscious navigation; one simply follows the tilt of the floor and the guidance of the heavy walls. As one moves, the intensity of light through high windows, the solid texture of the ramp underfoot, and the resonance of music against the walls naturally settle into the visitor’s consciousness.
The main hall serves as a reservoir of sensations. The cold materiality of the stainless steel kitchen and the weight of exposed concrete blend with the light pouring from high ceilings to complete the atmosphere.
The visitor is no longer a mere observer. Like a protagonist in a film realizing they are at the heart of a story, they embrace the identity of Gaenggo Banjiha, carrying the echoes of the descent. Though the beginning of the journey may remain elusive, visitors eventually find themselves at its core, facing the sea of Geoje through a deeply personal lens.


Project: GAENGGO BANJIHA / Location: 530, Samgwi-ro, Seongsan-gu, Changwon-si, Gyeongsangnam-do, Republic of Korea / Architect: eSou Architects / Project team: Hyejin Kim, Jueun Lee, Dakyeng Lee, Seungjin Park, Jeongbin Choi / Contractor: Byeongguk Gwon / Use: neighborhood living facilities / Site area: 330m² / Bldg. area: 182.10m² / Gross floor area: 224.97m² / Bldg. coverage ratio: 55.18% / Gross floor ratio: 57.04% / Bldg. one story below ground, two stories above ground / Height: 11m / Parking: 2 cars / Structure: RC / Finishing: EuroForm exposed concrete / Design: 2020.11~2021.9 / Construction: 2022.10~2024.2 / Completion: 2024 / Photograph: ©Youngchae Park (courtesy of the architect)

































