Platform for Gathering and Admiring the Landscape


As the name suggests, it is the everyday platform at the corner of the neighborhood where the village is overlooking at a glance. Like a painting, it offers a tranquil view of the surrounding park that unfolds, while also observing the bustling movement of the city. Situated like a platform for gathering and admiring the landscape, these spacious platforms are orderly arranged both vertically and horizontally, allowing multiple people to sit around.
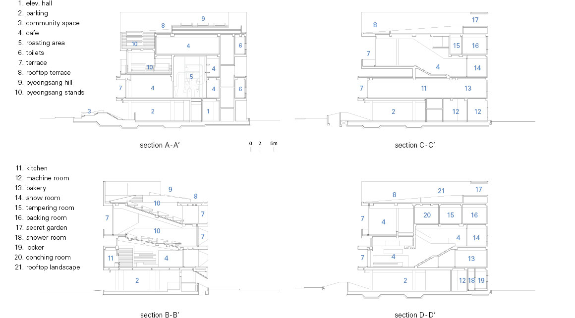
Located on the eastern edge of the Hangdong Public Housing Zone in Seoul, it houses a large café with a coffee bean factory. Adjacent to the northern boundary of the site is a public arboretum, frequented by over 500,000 visitors annually, offering a serene environment within the bustling city, equipped with a library, botanical garden, grass plaza, and various themed gardens.
The fact that there is an urban park three times the size of New York’s Bryant Park nearby becomes a sufficient condition for proposing a view-centric space. This is why a standalone platform is proposed for the panoramic program spanning all floors.






A type of traditional wooden furniture, the platform is transformed into concrete furniture integrated with the architectural space. The communal courtyard that shares the width and height, the platform stand connecting the 3rd and 4th floors, the external staircase connecting the 4th floor and the rooftop, and the rooftop platform provide physical and emotional continuity and unity between each separated floor. At the same time, each of these spaces unfolds with significant changes in the viewpoint as one ascends or changes seating on the platform. Especially, the external spaces on the 4th floor and the rooftop feature ondol platforms, addressing seasonal limitations when using outdoor platforms and inducing emotional reasons for users to share their body temperature with the architecture.
The chosen element to explore an independent yet complementary relationship between a mechanically filled factory and a table-centric café, each with different characteristics, is ‘glass.’ Leveraging the transparent nature of the material, the concept of ‘Glass in Glass’ is implemented, where two glass partitions effectively block spaces with different conditions and characteristics. They also penetrate each other. The transparent glass partition effectively blocks sensitive work environments, such as noise and temperature control within the factory, while visually encouraging direct observation and building trust. The transparent glass partition is also effective for workers inside the factory. With an open view towards the outside, they can fully enjoy the seasonal changes of the nearby arboretum and the daily variations.












The two spaces coexisting on the plan have different floor heights and different sections, allowing visitors to experience unique spaces depending on the viewing point. The bar on the 3rd floor is designed to efficiently utilize the upper space of the duplex factory, and the upper walls are designed with a cantilevered structure to open two sides and the corner. The long horizontal window serves as a device to oversee the production process of the factory.
The concept of the platform, encompassing the entire architecture, can also be encountered on the ground level under the name ‘Community Platform.’ Despite being private property, it reflects societal expectations regarding small public spaces. In reality, community programs centered around the platform naturally operate, such as local residents’ gatherings, pedestrian rest areas, and small concerts, receiving positive responses and support from neighboring residents.

Project: 9ro Pyeong Sang / Location: 80-1, Hang-dong, Guro-gu, Seoul, Republic of Korea / Architect: IDMM Architects (Heesoo Kwak) / Program: cafe / Site area: 1,045.00 m² / Bldg. area: 613.20m² / Gross floor area: 1,480.01m² / Bldg. coverage ratio: 56.68% / Gross floor ratio: 142.22% / Bldg. scale: four stories above ground / Height: 23.38m / Structure: RC / Exterior finishing: exposed concrete / Design: 2020.11~2022.1 / Construction: 2022.1~2023.7 / Completion: 2023.7 / Photograph: ©Jaeyoun Kim (courtesy of the architect)


































