Marked by layers of time

At the edge of Jochiwon’s old town, a former Hanlim Paper Factory—silent for more than two decades—has reopened with a cultural pulse. Jochiwon 1927 Art Center is a project of cultural regeneration that reactivates an idle industrial facility through contemporary programs. Yet here the past is not reduced to a decorative backdrop for the present; it remains as a layered accumulation of time that defines the character of the space. The project can be read as a careful overlay of new use upon the temporal strata of modern industrial heritage.
The site’s history dates back to 1927, when it began as the Sanil Spinning Factory during the Japanese colonial period. In the 1970s it became Hanlim Paper, serving as a pillar of the local economy in Jochiwon. After operations ceased in 2003, the complex was left behind an “island” within the city. Rather than erasing this vast ruin through wholesale renovation, the project adopts a stance of accepting the traces of the past as part of the landscape. Memory here is not something to be removed, but a foundation that sustains architectural authenticity.






The architectural impression on site emerges from the tension between preserving the industrial archetypes and inserting contemporary functions. Red-brick walls bearing the marks of time, an iconic chimney, and rough concrete basins have been retained as much as possible. Inside the factory’s wooden truss structure—repaired and reinforced—remains exposed at ceiling level, evoking both the scale of the space and the long passage of time embedded within it.
New volumes for performance and exhibition are composed of a restrained palette of steel, glass, and exposed concrete, and positioned so as not to intrude upon the existing structure. This strategy satisfies present-day requirements for structural safety and building regulations while clearly articulating the material contrast between the “old” and the “new.” Different temporal layers do not collide; they stand side by side, sustaining a quiet spatial tension.
The architect also focused on undoing the physical boundaries of the once-closed factory. Disconnected circulation routes that had long isolated the site have been reconfigured into a continuous cultural landscape, naturally linking the complex to the surrounding old town. Transitional zones that gently mediate between interior and exterior invite a slower, walking-based experience, while movement from rough concrete floors to smooth exhibition halls turns the industrial site into a visual promenade.














Rather than a self-contained object, Jochiwon 1927 Art Center functions as a cultural platform whose meaning continues to accrue through use and activity. Cracks in aged walls and newly added steel frames remain visible, openly revealing layers of time—and demonstrating how architecture can inherit and renew urban memory. As a key node in the regeneration of Jochiwon’s old town, the project asks how contemporary architecture might engage the past: not by erasing it, but by building with it.



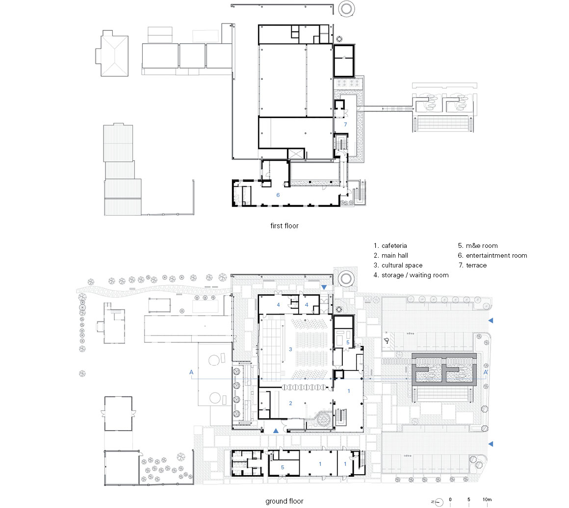
Project: Jochiwon 1927 Art Center / Location: 60-1, Nam-ri, Jochiwon-eup, Sejong-si, Republic of Korea / Architect: SAC International, ltd. (Kyungsik Hong) / Project team: Osik Na, Jinmook Kim, Bongju Kim, Yeonin Park, Yubin Um / Structural engineer: CS Structural Engineers / Mechanical and electrical engineer: HANA Consulting Engineers / Contractor: Jangbyuk Construction Co., Ltd. / Client: Sejong City / Use: cultural facilities, neighborhood living facilities / Site area: 6,169m² / Bldg. area: 1,614m² (before_1,061m²) / Gross floor area: 1,703m² (before_1,111m²) / Bldg. coverage ratio: 26.17%% / Gross floor ratio: 27.61% / Bldg. scale: two stories above ground / Structure: SC, RC, Wood / Design: 2021.3~2021.7 / Construction: 2021.9~2022.6 / Completion: 2022 / Photograph: ©Juneyoung Lim (courtesy of the architect)



































