A House of Scent Built by Byeori Order and Loose Hand

Perfumer H, a British fragrance brand, has opened its Seoul store near Dosan Park in Gangnam. Translating the identity of a brand devoted to exceptionally delicate scents into the physical reality of architecture is no easy task. Faced with this challenge, the architect adopted an apparently paradoxical stance as the project’s point of departure: daegang, often translated as “working in broad strokes.”
Commonly taken to imply looseness or imprecision, daegang is composed of two Chinese characters: dae (大), meaning “great” or “large,” and gang (綱), meaning “byeori,” the main rope of a net where many threads converge. Byeori refers to a governing order: a core line of structure and logic that runs through the whole. Rather than becoming absorbed in peripheral details, the architect focused on establishing this fundamental line—the structural and spatial logic that anchors the project. Once the framework is set, subsequent decisions can follow its course with clarity. This approach suggests that architecture, like ceramics, where clay is carefully prepared and kiln temperatures attentively controlled before the final outcome is entrusted to the fire, demands patience, restraint, and the willingness to wait.
This way of thinking permeates the materials and details throughout the space. Instead of standardized industrial products, bricks were fired individually; metal furniture was ground and finished by skilled hands; plaster floors were refined to endure the accumulation of time; and timber structures were assembled from reclaimed elements of traditional hanok buildings. Even in areas beyond the strict reach of drawings, traces of labor and duration remain legible. Here, materials are not decorative devices but vessels that register the density of care invested in their making. Although the space does not overtly declare a Korean identity, it carries a familiar warmth—one that emerges naturally from the accumulation of attentive gestures.







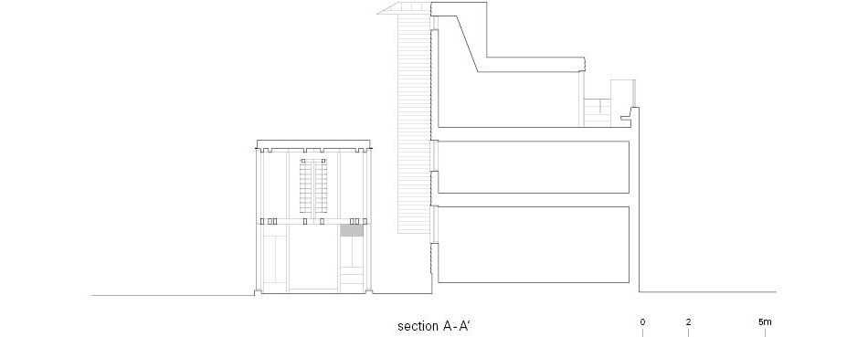
The existing building that forms the foundation of the project was a brick structure that had endured for more than fifty years. Its plywood-covered roof and deteriorated walls bore the marks of long neglect. By reinforcing the structure with steel and inserting new staircases, the architect expanded it into a three-story building, bringing a renewed sense of order to the old shell.
A defining decision in this process was to value removal over addition. To recover the original courtyard, illegally added extensions were decisively demolished, allowing an open void to re-emerge within the dense urban fabric. In this courtyard stands a small wooden pavilion, notable for its craft-like precision. Designed to respond flexibly to the courtyard, it can serve as a pop-up store or an exhibition space as needed. In sharp contrast to the existing building’s rough exterior, the pavilion’s refined presence functions as a visual marker—almost like a lighthouse—within the Dosan Park neighborhood.










The architectural attitude of the Perfumer H Seoul store closely parallels the philosophy of its founder, Lynne Harris. The brand translates nature, seasons, landscapes, and personal memories into what it calls “olfactory landscapes,” favoring restraint over excess and density over ornament. Here, that sensibility is rendered through space and light. Like the fragrance itself—quietly, gradually revealing its character—the building maintains a composed yet concentrated presence within the city. By weaving the existing building, the pavilion, and the restored courtyard into a single byeori, the project calmly articulates the point at which architectural thinking and the brand’s worldview converge.

Project: Perfumer H Seoul Store / Location: 55, Apgujeong-ro 46-gil, Gangnam-gu, Seoul, Republic of Korea / Architect: chak chak studio / Project team: Daekyun Kim, Kyungseok Hong / Project management: Perfumer H / Contractor: Chul Hwangbo / Client: Simpac Atelier, Perfumer H / Use: Shop, Office / Site area:248.10m² / Bldg. area: 138.41m² / Gross floor area: 307.46m²/ Completion: 2025 / Photograph: ©Donggyu Kim (courtesy of the architect)


































