Where Traces and Movement Intersect


When planning an urban commercial interior, it is rare to choose—deliberately—to reduce usable floor area. In Seongsu-dong, where rents and per-square-metre values have reached a peak, it is rarer still. The conventional, capital-aligned formula is straightforward: secure as much floor area as possible, pack the plan with product, admit more bodies, and extend dwell time. The COOR Seongsu Flagship Store begins by quietly stepping aside from that premise.
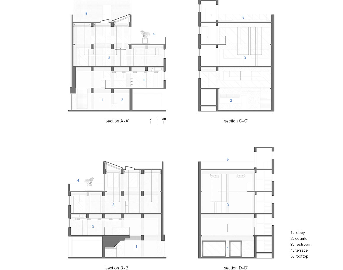
Here, the architect prioritises the depth of experience over spatial efficiency. Half of the second-floor slab and roughly two-thirds of the fourth-floor slab were removed. The result is a concentrated vertical void that physically penetrates four storeys while being perceived—through proportion and compression—closer to a two-storey scale. This is not emptiness for its own sake, but a spatial device: a way of translating the horizontal limits of retail into vertical openness.







The core question was how to guide visitors upward without forcing the movement. It was not enough to “add stairs.” The aim was to compose a sequence so refined that visitors could surrender to the spatial flow before making a conscious decision. Circulation is therefore legible without signage, while the widths of landings and passages—and the dimensions of stairs, where the body registers comfort most acutely—are carefully tuned to reduce the psychological and physical burden of ascent and descent. At the same time, continuity is secured by stitching together each floor’s scenes, so that sightlines and movement remain connected all the way to the top.
Slabs left in uneven portions generate unexpected three-dimensional situations between levels. The first and second floors read as a single volume in which light and air intermingle, and the traces of the existing structure—beams and columns—are left exposed without cosmetic concealment. Against this rough structural ground, visitors’ movements overlap, while garments on suspended rails cut across the void and lend the space a measured visual rhythm. When one looks up, multiple ceilings come into view at once; only then does the spatial logic fully register—different floors are not discrete episodes but interconnected scenes held within a single field of vision.




Sharing this vertically opened space, each level at COOR Seongsu no longer behaves like an isolated shop. Visitors’ actions extend beyond selection and purchase to an encounter with continuously shifting perspectives as they move up and down. Shopping becomes less an act of consumption than a passage through architectural space. By choosing void over efficiency, COOR Seongsu allows the brand’s identity, the spatial narrative, and the atmosphere of the interior to be remembered together—without relying on overt decoration.

Project: COOR Seongsu Flagship Store / Location: 1-4F, 14-2, Yeonmujang-gil, Seongdong-gu, Seoul, Republic of Korea / Architect: Atelier KHJ / Project team: Hyunjong Kim, Chaewon Kang, Jihyeong Lee / Contractor: Sewon Design / Client: COOR / Use: fashion showroom / Gross floor area: 520.95m² / Completion: 2023 / Photograph: courtesy of the architect


































