An Organic Space for a Family Like a School of Fish that Freely Gather and Disperse


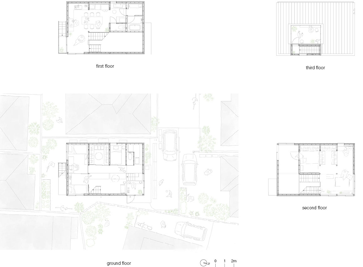
Located in Chigasaki, a coastal area southwest of Tokyo, this 112㎡ house is home to six family members spanning three generations. At the end of a cul-de-sac in a lively seaside residential neighborhood, the grandparents’ former house was demolished and rebuilt as a new home for the extended family. The young couple run a hair salon nearby, and their child spends much of the day with the grandparents. The six family members maintain their own lifestyles while respecting one another’s individuality and living harmoniously together. The design goal was to create a house where each person could live in their own way, yet gather together when needed. The space was imagined as a loose, organic collective, like a school of fish that gathers and disperses freely.




The house is organized on a grid system, but some columns are intentionally omitted and beams are staggered to enhance spatial continuity. Structural members, finishes, and furniture are all made of wood, creating a consistent atmosphere throughout. This emphasizes the organic flow of space while revealing the modular system that composes it. Across five levels, from the semi-basement to the rooftop, differences in floor height generate subtle variations in eye level, forming small pockets of space that encourage sitting or leaning, creating layered scenes of daily life. Gardens at the front and back soften the boundary with the neighborhood and foster a sense of familiarity. The first-floor balcony and large sliding doors open fully to the front garden, extending the house toward the street. The children move freely between indoors and outdoors with friends, and conversations with neighbors tending their gardens arise naturally. The second floor contains the dining area and household workspace. A large central table supports meals, study, housework, and remote work, allowing diverse daily rhythms to coexist. The semi-basement and third floor contain small rooms ranging from 4.5 to 7.3㎡. Sliding doors and movable furniture connect these rooms to one another and to shared spaces, enabling flexible control over openness and privacy. The house can adapt to changes in lifestyle and the passage of time.











Corner windows open in two directions, ensuring that views of the outside remain present even while moving through the house. Natural light enters from multiple angles, and breezes follow varied paths, creating distinct atmospheres across time and seasons. This arrangement disperses sightlines, allowing appropriate distance to be maintained even within the same space. Like a school of fish, the six family members gather and disperse throughout the day. Sometimes alone, sometimes in small groups, they accumulate shared time within a gentle, fluid rhythm.
Project: CHIGASAKI HOUSE / Location: Kanagawa, Japan / Architect: TAMADA & WAKIMOTO ARCHITECTS / Project team: Makoto Tamada, Natsuko Wakimoto / Structural engineer: Graph Studio_Yoshihiro Fukushima, Hirotaka Ujioka / Use: House / Site area: 118.35m² / Bldg. area: 44.72m² / Gross floor area: 112.64m² / Completion: 2024 / Photograph: ©Kenta Hasegawa (courtesy of the architect), ©TAMADA & WAKIMOTO ARCHITECTS


































