Practicing autonomous cyclical system to realize self-sufficiency in nature

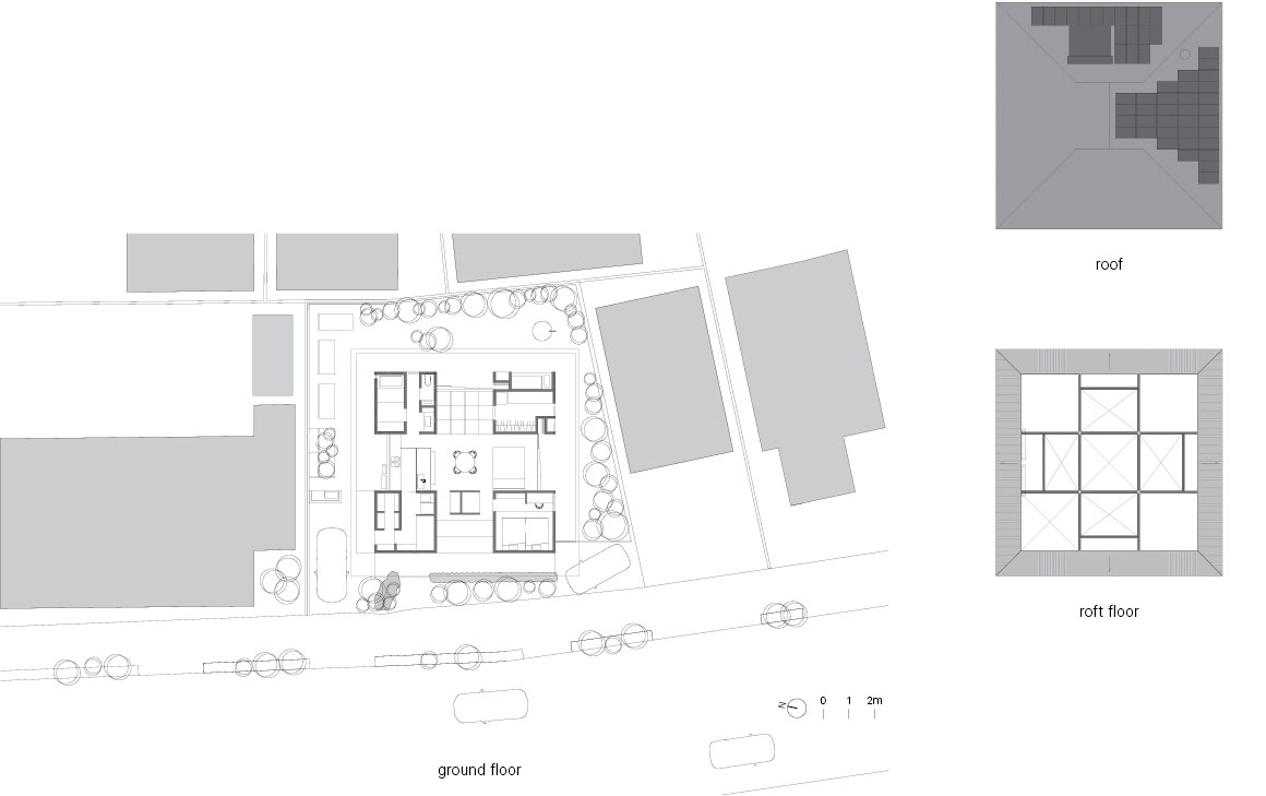
On Amami Ōshima Island, floating off the southwestern coast of Japan, stands a house independent of the world‘s power grid. As environmental destruction accelerates and extreme weather events continue to recur, self-sufficiency has become not a choice but a necessity. The Amami House, which realizes such an autonomous cyclical system, was personally designed by Kazunori Sakai, founder of Sakai Architects. A large truncated pyramidal metal roof is fitted with photovoltaic panels, while skylights open apertures for daylight. The interior is finished in wood.
Three years ago, the architect purchased a mountainside on the island and initiated a project to explore new possibilities for resilience in a region facing both population decline and rapid aging. Establishing a fully self-sufficient micro-infrastructure deep in the mountains, however, proved challenging, as the island receives less sunlight than expected. Wind, hydropower, and geothermal energy were all examined, but none met optimal conditions, leaving solar power as the most realistic option.
Independent from the urban power grid, the house achieves a level of self-reliance that allows a family of four to live comfortably without reliance on external energy sources, even in the island‘s harsh subtropical environment marked by high humidity and limited sunlight. Urban housing, long distanced from nature, turns back toward it here, proposing a contemporary way of life that coexists with the natural world.





Five independent volumes housing the primary functions are arranged geometrically, with shared spaces naturally forming between them. These areas are connected by engawa verandas and gardens, dissolving the boundaries between interior and exterior, family and community, and human and nature.
The roof reinter’rets the region‘s familiar corrugated metal roofing and gabled forms in a contemporary manner. By integrating insulation, ventilation, and daylighting, it responds actively to Amami’s climate. A structure inspired by loft-like grain storage beneath the roof encourages airflow from all directions, while deep eaves provide protection from intense sunlight and sudden tropical downpours.
A small wood-fired sauna fueled by leftover timber from the construction process embodies a cycle of resources. Food waste is converted into compost and returned to the vegetable garden, where harvested produce comes back to the family table, completing a living, on-site cyclical ecosystem.










Amami is known as the “island of bonds.” Communal rituals remain central to daily life, and when family events take place, it was once common for more than eighty relatives and neighbors to gather and spend long evenings together. Although such traditions are gradually fading amid urbanization and isolation, the Amami House revives these cultural rhythms. Its open and inclusive spaces naturally draw people in, breaking down the boundaries between private dwelling and shared domain. More than a mere shelter, it functions as a cultural platform that sustains life—an architecture that maintains a life detached from the power grid while inheriting the spirit of collective cooperation. Responding to the climatic and cultural ecology of the southern Amami islands, it questions what it means to dwell in an age of uncertainty.


Project: Amami House / Location: Amami Island, Kagoshima, Japan / Architect: Sakai Architects (Kazunori Sakai) / Contractor: Kawaguchi Construction Co., Ltd. / Client: Kazunori Sakai / Use: residence / Site area: 358.28m² / Bldg. area: 142.08m² / Gross floor area: 119.24m² / Completion: 2024 / Photograph: ©Toshihisa Ishii (courtesy of the architect)


































