Narrow, Elongated and Oriented Perpendicular to the Topographic Contours

As if meant to defy the topography of Alto Malcantone, the Federico Rella house is placed in a different site orientation than any of the buildings in the area. Whereas other houses are largely oriented parallel to the topographic contours of the area, Federico Rella is perpendicular. Whereas other houses are largely equilateral in plan, this house is narrow and elongated. Most houses are arranged according to the history of the site, but this house breaks with that history.
Despite breaking all the rules, the one rule this house does not break is its relationship with the land.
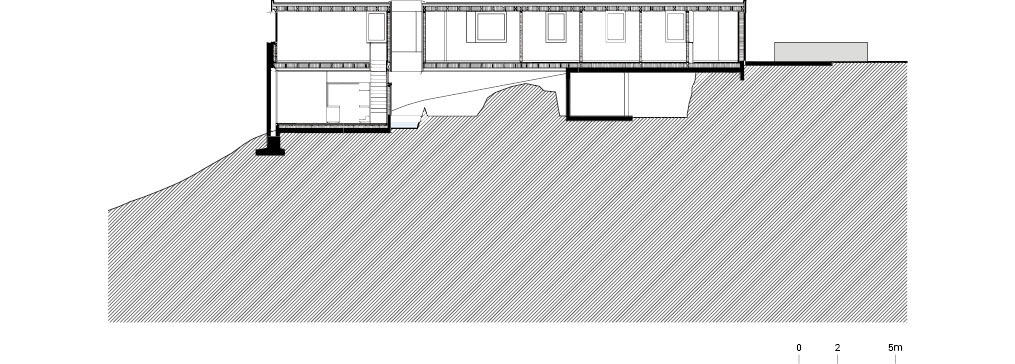
The desire to relate to the land, exploiting and preserving its natural beauty, inspired the decision to put the new building on three points. This positioning helped to create a sequence of spaces under the main volume, consisting of a kitchen, porch, and rock cellars.
Arriving at the house from the street, gives the impression that the house consists of one floor.
The intention to play with the view from the paths influenced the decision to reduce the perceived size of the building.








In reality, the house is organized on two levels. The first level containing bedrooms, living room, and services is placed at street access. It develops towards the valley, establishing a strong relationship with the landscape.
On the floor below there is the dining area, connected to the old peasant terraces.
The rooms are oriented to the South, where, thanks to the morphology of the place and the position of neighboring buildings, the view will remain unchanged. The long furniture acts as a separation between the sleeping and circulation areas. The choice to locate the circulation space exposed to the North is dictated by the potential constructions on the adjacent parcels, in front of which several tall fruit trees will be planted.









The building consists of a load-bearing structure of reinforced concrete carrying the volume of the wood construction of the house. The first consists of two beams that rest on the flat part of the land and jut out into the valley. They are supported by a central pillar placed at the head of the building and anchored to the lower terrace. The secondary structure is in wood. It develops inside the beams and defines the volume of the house. In addition to the structural function, the pillar enhances its relationship with old terraces and provides privacy from the street below.
The external appearance of the house is characterized by horizontal bands showing the structural part in concrete and the overlying part in wood, covered with rough chestnut boards found on site. These have been trimmed following the “tree shape”, concerning the various characteristics, such as knots and cracks. This way, waste is limited, allowing the house to maximize the characteristics of the local wood.
Durability of the material used to atmospheric agents and its ecologically and economically sustainable performance, influenced this design.
The external areas, such as parking, porch, and flat roof, were made with crushed excavated material, an iron-rich red gneiss that characterizes the natural rocks of the region, proposing a chromatic result similar to one of the buildings in the historic center.

Project: 11401 / Location: Alto Malcantone, Ticino, Switzerland / Studio: Federico Rella / Architect: Federico Rella – Matteo Rella / Structural engineer: Ingegneri Pedrazzini Guidotti / Constructor: Pedrazzini costruzioni / Carpentry works: Bissig Holzbau / Use: single family residence / Site area: 1.290m² / Bldg. area: 159m² / Gross floor area: 186m² / Construction: concrete, timber / Completion: 2019 / Photograph: Tonatiuh Ambrosetti(courtesy of the architect)


































