Fulfilling immediacy, flexibility and resource optimization


The requirements for this project were boldly defined from the beginning: the construction should be fast, cost-effective and changeable over time. This prompted the studio to use prefabricated elements and to leave parts of the project undefined, assuming immediacy, flexibility and resource optimization as core themes.
The strategy was clear: a ground floor level for a multi-services program, connected with the public space and crowned by the individual habitational units (six cabins of 45m²). Due to the differences between these two programs, the building was created with independent access for each one, placing the different programs at different levels and taking advantage of the natural slope of the ground.
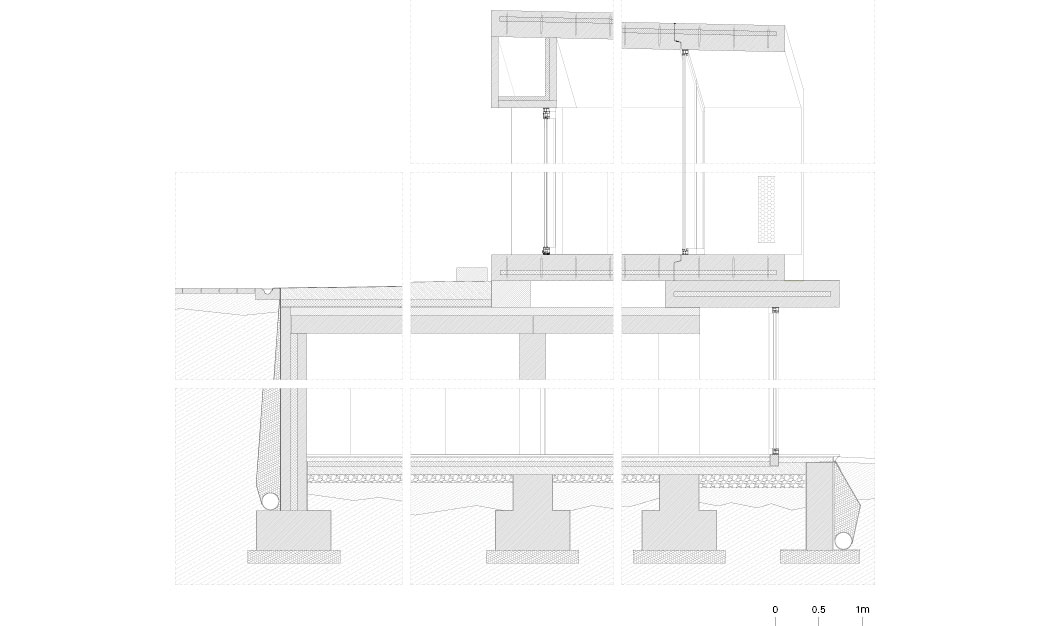
The ground floor is shaped by prefabricated slabs and structural panels along the external perimeter. This area was conceived in a flexible way: it is possible to add or remove compartments or let the whole floor function as one big open space. The users may adapt the space according to their needs.











The first floor is composed of Gomos System units. Considering that the maximum building area permitted by law was quite small, the requested empty space was used to separate the housing units. Designed and licensed as a collective housing building, with this feature, the project offers the main advantages of single houses: clearly individualized entrances and complete acoustic separation between the different units.
Throughout the building, the structural material – precast concrete – is directly exposed, without any additional finishing, reducing the resources, the manpower and the labor involved in the construction process and, consequently, reducing its environmental impact. This approach had a direct effect on accelerating the building process: all its components are fully prepared in the factory and quickly assembled in situ, performing at once as structure, insulation and cladding elements.








Project: 1,000m2 Prefabricated / Location: Vale de Cambra, Portugal / Architect: SUMMARY – Samuel Gonçalves (project leader), Inês Rodrigues, João Meira, Gonçalo Vaz de Carvalho / Engineering: FTS, Technical Solutions / Prefabrication and assembly: Farcimar, Soluções em Pré-Fabricados de Betão / Client: Private / Category: multi-services + housing / Construction area: 998m2 / Predominant Material: Reinforced concrete / Completion: 2019 / Photograph: Fernando Guerra | FG+SG


































