A Former Power Plant Renovated to Add to the Current Urban Layer

Completed in 1894, the Anònima Manresana power plant stands at the heart of Manresa‘s historic centre, where it served as a key piece of infrastructure driving the city’s industrialisation. Producing and distributing electricity, it remained closely tied to the city‘s growth before eventually losing its function over time. This project transforms the industrial heritage into a public programme, aiming to restore its central role in the city and create a place that naturally draws people back.
The intervention begins by removing parts of the dense fabric surrounding the building. The voids created through selective demolition are reconfigured as public open space, reconnecting what had long been a severed relationship between the complex and the city. In this way, the site shifts from an isolated industrial facility into an open urban node embedded in everyday life.








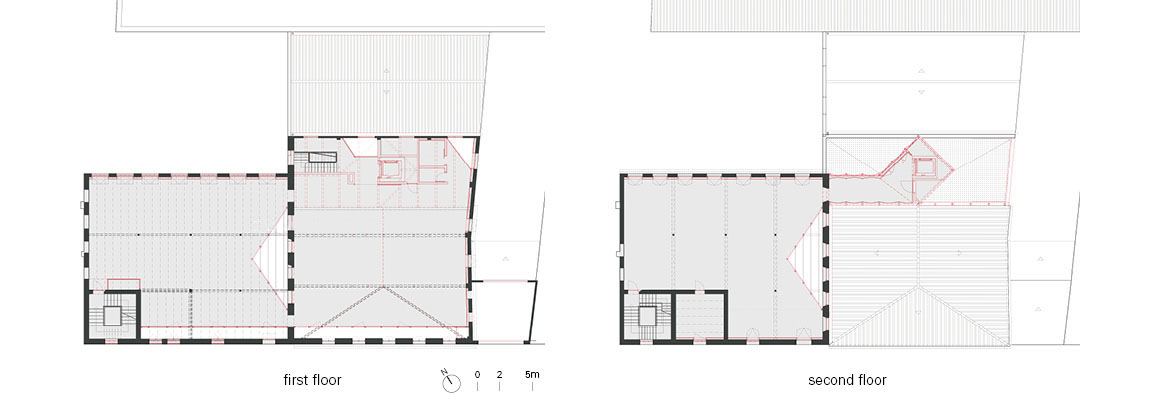
The spatial organisation builds on the existing structure. A street-facing former textile factory and two parallel service wings arranged around a central courtyard form a single ensemble. Spaces that once housed boilers and machinery are adapted into flexible areas for new programmes, while traces of coal storage and exhaust systems in the basement remain as layers of memory. The largest volume is preserved as an open hall structured by its column grid, supporting performances and various activities, while the central block operates as a public foyer mediating between inside and outside. Administrative functions occupy the upper levels.
Rather than preserving the structure as a fixed artefact of the past, the project updates it through integration with present-day use. New interventions interlock with existing elements, revealing traces of time while accommodating change. This approach frames the building not as a static relic, but as a structure capable of ongoing transformation.
The reconfiguration of the basement expands the spatial experience. Previously neglected, the substructure beneath the square is excavated and opened up, allowing natural light to enter and forming a new spatial layer. This connects fragmented levels and draws the interior into a continuous urban flow.
Environmental strategies are developed alongside the spatial organisation. A glass gallery, added while retaining the original façades, acts as a climatic buffer that moderates solar gain and airflow across seasons, helping to stabilise indoor thermal conditions. A full-height central void functions as a vertical device for natural ventilation and daylighting, while also revealing the historic inner façade.












Through the integration of architectural and environmental strategies layered onto its industrial foundation, the project reactivates the site‘s latent potential. Changes within the building extend into public space, reshaping its relationship with the city. By reactivating use, performance, and accumulated memory, the project enables the site to operate once again as part of the urban fabric.

Project: L’Anònima Manresana / Location: Manresa, Spain / Architect: Meritxell Inaraja / Project team: Josep M Cubí I Surinyach, Amàlia Casals Gil, Laura Bigas Montaner, José Amor / Collaborators: Ardèvols Consultors Associats SLP, AIA Salazar-Navarro SL, BisMep Systems SLP / Use: public / Completion: 2025 / Photograph: ©Adrià Goula (courtesy of the architect)

































