Woven by alleys echoing the landscape
Hibino Sekkei + Youji no Shiro + Kids Design Labo

In northern Nagasaki Prefecture, Fukahori is a small coastal town shaped by a long history of fishing and shipbuilding. Houses cluster tightly along steep slopes, and narrow, winding alleyways weave between them, forming a distinctive everyday landscape. Within this calm setting, a new kindergarten has taken shape—one that reflects the town’s long-standing way of living with the land. FK Kindergarten and Nursery is conceived as a place where children’s daily movement becomes part of the local scenery.





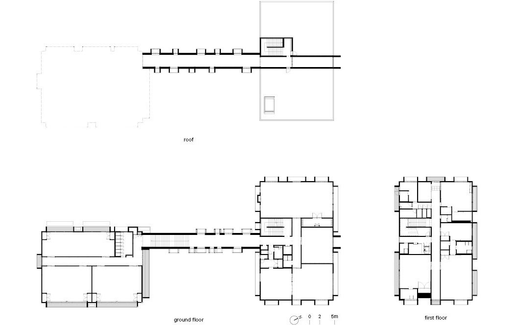
The site is defined by a height difference of approximately seven meters. Rather than treating this steep terrain as an obstacle, the project adopts it as a generative condition. By positioning the volumes along the natural contours instead of leveling the ground, excavation and soil transport were minimized, reducing the project’s environmental footprint. The slope itself becomes an integral playground, allowing topography to directly shape children’s play.
The kindergarten is composed of two building volumes—one at the top of the slope and one at the bottom—linked by a central circulation spine. This connecting space reinterprets the town’s narrow alleyways, translating their spatial character into architecture. A broad staircase and a climbing net structure animate the corridor, encouraging children to move freely between levels. As they run, climb, and descend, children discover their own ways of playing and learning, turning circulation into an active spatial experience. Throughout the building, interior and exterior spaces flow seamlessly, allowing play to extend in all directions.










Material and color further anchor the project in its local context. The exterior walls, interior finishes, and furniture draw from the palette of Nagasaki: deep blues recalling the port, reds referencing the town’s brick heritage, and earthy tones echoing the stone-paved streets. These colors are not applied decoratively but operate as a subtle medium through which children become familiar with the visual identity of their hometown.
From the upper playground, views open toward the sea and the clustered rooftops of Fukahori below. These everyday vistas quietly enter children’s routines, becoming part of their lived environment. More than a standalone educational facility, FK Kindergarten and Nursery positions itself as an extension of the town—an architectural setting where children grow by engaging with the terrain, culture, and spatial rhythms of the place they call home.

Project: FK Kindergarten and Nursery / Location: Nagasaki City, Nagasaki Prefecture, Japan / Architects: HIBINOSEKKEI + Youji no Shiro + KIDS DESIGN LABO / Use: kindergarten / Site area: 2,730.38m² / Bldg. area: 820.53m² / Gross floor area: 1,075.25m² / Bldg. scale: two stories above ground / Structure: wood / Completion: 2024.6. / Photograph: ©Ryuji Inoue (courtesy of the architect)


































