A Century Old Maker Space Given New Life
JWA Berlin, Ralf Wilkening Architect

In Berlin’s the Prenzlauer Berg district, the Remise Immanuelkirchstrasse stands as a contemporary version of a residential typology that goes back over a century.
Eighty percent of the existing tenement building was erected between 1890 and 1905. The layout was always the same: The front and back spaces were for living, and then the remise was the outhouse.
The remise was also where artisans, such as carpenters, saddlers, locksmiths, printers, bakers, and other makers plied their trades. Back then, many of the necessities for life were manufactured on-the-spot. Although the apartments remain, the firm of Ralf Wilkening Architect has turned the remise into a space for start-ups, graphic designers, programmers, and other entrepreneurs.





At a time when the idea of live-work spaces appears more practical now than it has in generations, the reincarnation that the Remise Immanuelkirchstrasse represents to the urban landscape of Berlin is hopeful. The concept of work as being an activity that could and should happen anywhere, depending on the type of work it is laudable.
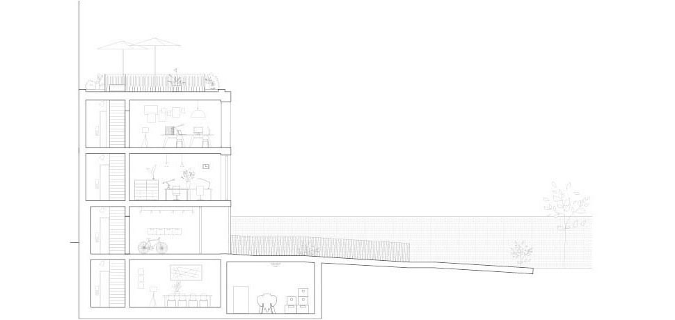
The Remise Immanuelkirchstrasse is a three-storey structure with a basement level. The site is oriented in such a way as to minimize flooding, while the architecture is designed to maximize natural light. What would have been a dingy workspace a century ago, is now a bright and uplifting place of creation.





Three office spaces are created in the project, each of which spans an entire floor, and can be divided individually using drywalls. A roof terrace allows the users to relax in the sun. The illumination takes place through the large glass facade which creates small balconies by playing with the window positions. Based on a hybrid construction, made of reinforced concrete and wood, the REMISE benefits from the qualities of both materials. Despite the heavy construction of the existing structure, the wood and the glass give the impression of a light construction fitting for a 21st-century maker space.
The walls were made as structural elements from exposed concrete. In addition, all ceilings were made in a composite building technique. Prefabricated, wooden ceiling beams are placed in the recesses of the concrete walls and provided with slab, on which a layer of concrete is applied. The ceiling construction remains visible in the interior and contributes significantly to the special atmosphere of the rooms. In terms of energy, construction time, and lifespan, it became clear that a hybrid construction with wood was superior to a classic solid construction in this project.
The Remise is a place of imagination for the entrepreneurs of the future, and an example of what is possible at similar buildings in Berlin. A live-work experience that pays homage to the economy of the past, while being used for the economy of today and the future.
Project: Remise Immanuelkirchstrasse / Location: Berlin, Germany / Architects: JWA Berlin with Ralf Wilkening Architect / Project director: Lukas Beer / Project team: Alisa Joseph, Pedro Hamon, Hannah Knittel, Luisa Schäfer, Annett Schneider, Christoph Seibt, Aaron Schedler, Jean-Baptiste Bernard, Matic Cerin / Timber construction: Kai Vater Zimmerei und Holzbau GmbH & Co. KG, Lutherstadt Wittenberg / Structural engineering: fd-ingenieure, Berlin / MEP: Ingenieurbüro Dr. Specht, Berlin / Concrete works: Hochbau KW Wohn- und Industriebau GmbH, Königs Wusterhausen / Client: Suwelack SHC GmbH, Billerbeck / Completion: 2020 / Photograph: Simon Menges (courtesy of the architect)

































