An employment support center for challenged youth

For young people who have difficulty with day to day life – such a ‘shut-in’ (agoraphobic person) or a young adult with developmental disabilities – at Nakanomachi Shopping Street in Wakayama Prefecture the architects have created a small facility called “YORIDOKO” that provides employment support.
The budget of construction was very limited. Therefore, instead of the conventional method of pasting a finishing material to an existing frame, the architects adopted a method of making the finishing material stand alone, like a stage set. Given that the amount of finishing material used can be reduced, the existing skeleton and finishing material create depth, and a more three-dimensional space.
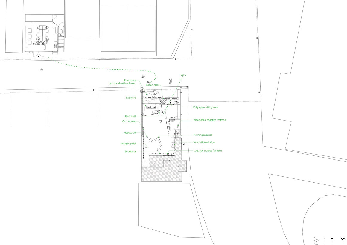
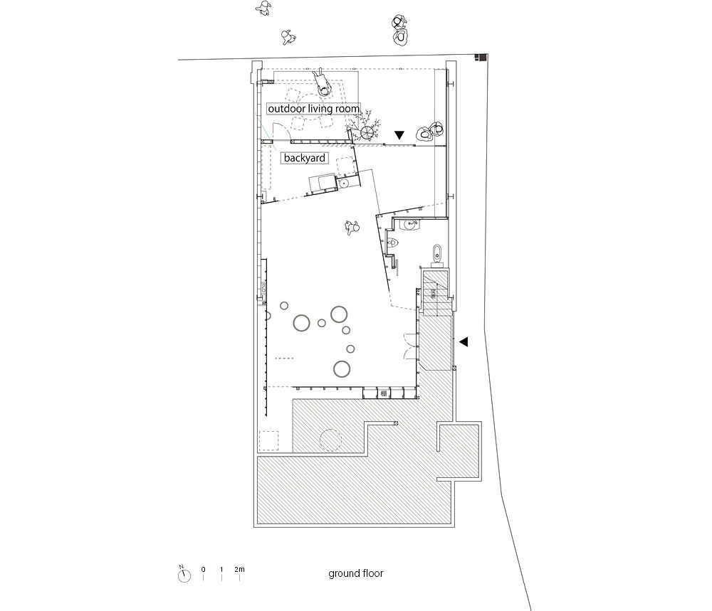
On the interior, on cleaning the base of the old ceiling, the designers left a part of the ceiling removed. In the space created, a geometric wall element juts into the space, creating a sense of distance and depth. The graphic on the wall serves as a sign invitation for facility users to play: to throw balls, hopscotch, and jump if they want to.




The architect planned not to hide the inside of the facility too much. The entrance is a glass door that allows passersby to look inside from the shopping street, alternatively it can be opened completely.
People of all age-ranges, from seniors to high school students, come and go in along the adjacent shopping street. There is a public space directly in front of YORIDOKO, which is open for stand-up events, eating and drinking, as well as for self-study and playing chess.
At times, it is envisioned that the users of the facility will use it for more practical living and working support, even holding their own events independently. The construction cost was collected by crowdfunding and donations from local companies. In the future it is intended for the program organizers to hire facility users, and find employment for them, in collaboration with local companies giving employment to those with disabilities.










Project: Employment support center YORIDOKO / Location: Nakanomachi shopping street, Wakayama prefecture, Japan / Design: td-Atelier / Construction: Nonaka kohmuten.Co.,Ltd. / Landscape: Niwakohbo – Matsuda Saburo / Graphic design: akfocus – Asada Katsuya / Total floor area: 69.55m² / Design: 2019.7~2019.11 / Construction: 2019.12~2020.3 / Photograph: ©Matsumura Kohei (courtesy of the architect)


































