Link with the City by Combining Timber Construction with Advanced Building System

The Poblenou district in Barcelona was once a major manufacturing area. Following the decline of the textile industry in the 1960s, it experienced a period of downturn, but the “22@ Barcelona” project launched in the 2000s has since transformed it into a knowledge-based innovation hub. More recently, large-scale interventions have been underway to convert traffic-oriented streets into pedestrian green spaces. T3 Diagonal Mar, a new office building by global real estate developer Hines, stands along one of these emerging green axes.
The “T3” in the building’s name refers to Timber, Transit, and Technology—three principles that define Hines’ approach to next-generation workplaces. By combining timber construction with advanced building systems, the project proposes a sustainable model for contemporary office environments.






The building engages with the city through its relationship with the adjacent plot. The space between the two neighboring buildings is opened to form a public pedestrian route, allowing the linear green axis to extend into the inner courtyard. At the ground level, a pilotis structure articulated by inclined columns creates an open base that connects directly to the street, drawing urban activity into the building.
The five-story structure is conceived as a mass timber building, with columns, beams, and floor slabs above the ground floor constructed entirely of wood. Timber reduces carbon emissions while introducing a sense of warmth to the interior. Upon entering, a lobby combining vegetation and exposed timber acts as a transitional space between the city and the surrounding greenery.
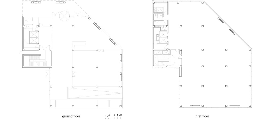
The plan is organized around a compact core placed along the boundary with the neighboring building, integrating vertical circulation and services while CLT panels provide lateral stability. Full-height glazing allows natural light deep into the interior and visually connects the workspace with the surrounding trees, creating a biophilic working environment.






Materials are carefully selected according to their function and exposure. Radiata Pine (Insignis Pine) is used for the structural frame and curtain wall mullions, while Siberian Larch is applied to exterior elements requiring higher durability. The façade is finished using the traditional Japanese Yakisugi charring technique, enhancing durability while adding depth and texture to the timber surface.
BIM was employed throughout the design and construction process to coordinate the timber structure with prefabricated systems. As a result, the superstructure was assembled in just 2.5 months, demonstrating the efficiency of combining off-site fabrication with on-site installation.
Project: T3 Diagonal Mar Offices / Location: C/ Cristobal de Moura 204, Barcelona, Spain / Architect(s): Batlleiroig Arquitectura (Enric Batlle Durany, Joan Roig i Duran, Albert Gil Margalef, Helena Salvadó Giné, Anna Lloret Papaseit) / Project team: architect_Santi Xercavins Julià, Jordi Llàcer Macau, Mario Súñer Díaz, Roger Mermi Ribalta, Marta Sanz Cuso; architect and landscape architect_Bárbara Freire Ares / Structural engineer: BIS Structures / MEP engineer: PGI Engineering / Facade engineer: Ferrés Arquitectos, Consultores / Manufacturing and wood construction engineers: Egoin / Building engineers: G3 / Contractor: OCP – Obra Civil Profesional / Client: Hines / Use: office / Gross floor area: 3,627m² / Design and construction: 2021-2023 / Completion: 2023 / Photograph: ©Oriol Gómez (courtesy of the architect); ©Maria Azkarate (courtesy of the architect); ©Antonio_Navarro_Wijkmark (courtesy of the architect); ©Stupendastic (courtesy of the architect)

































