Juxtaposed with the exposed concrete and the four geometric ‘ribbons’


Heyri Theatre is a large open space, not delicately designed but meticulously calculated, engineered and measured, resulting in a typology more reminiscent of an agricultural building than theatre in the conventional sense. Situated in the rapidly growing Heyri Art Valley in Paju, Gyeonggi Province, ‘Heyri Theatre’, responds to the growing need for overnight accommodation while offering a cultural complex to facilitate the performing arts. It is to this extent Heyri Theatre is a multi functional building operating as both unique performance space and boutique hotel, while following the stipulated ethos of the masterplan by engaging with the landscape in multiple ways.
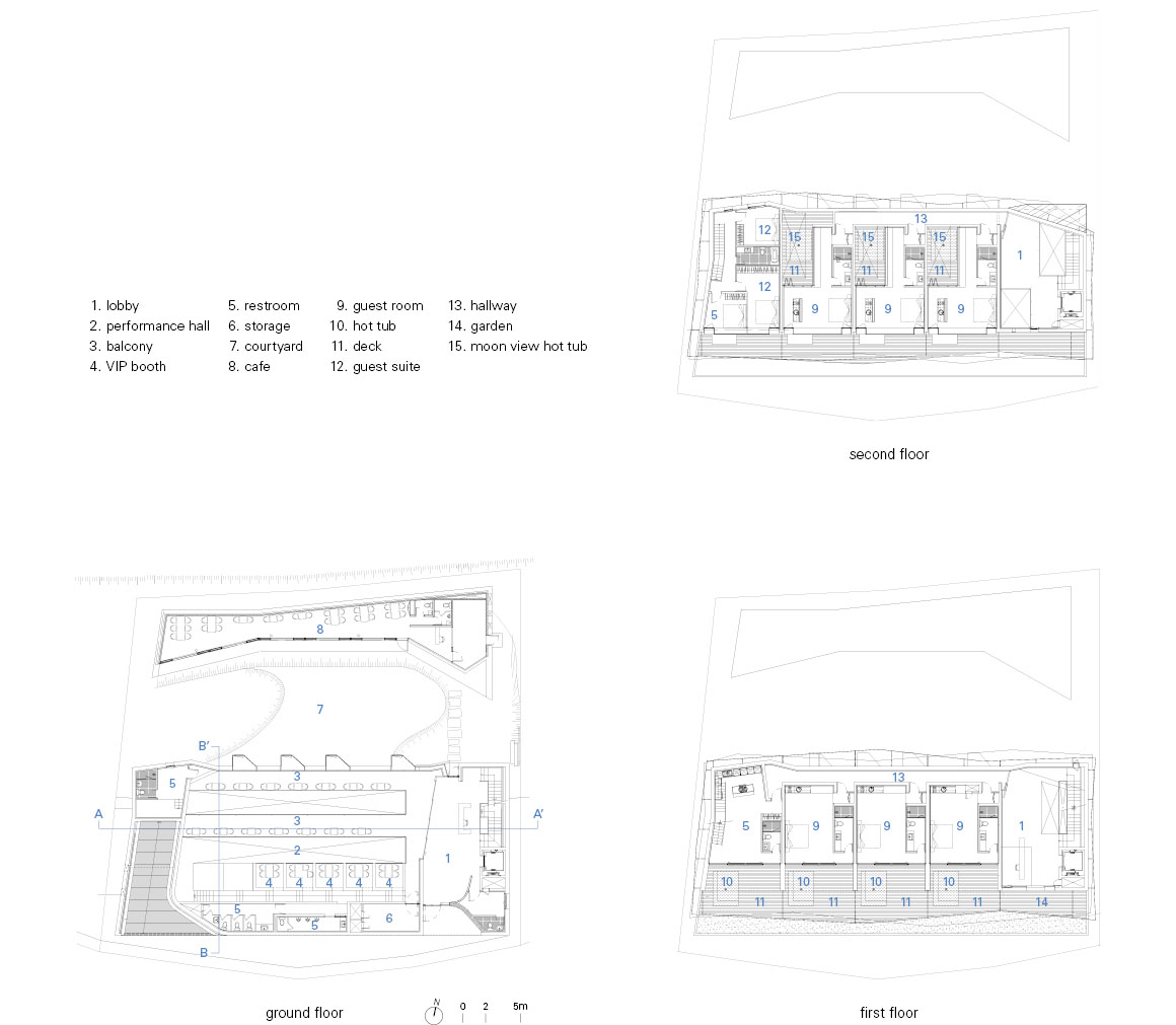
Programmatically, the theatre hosts diverse performances from young experimental acts through to seasoned musicians and performing arts. The design of the hall reflects this becoming a flexible, open space measuring 11mx20mx7m and able to accommodate large or small performances. Seven projected boxes frame the main space, stepping down to offer unobstructed views while a suspended catwalk provides an area for the general public to watch performances. Serving the theatre, a linear café opens to the surrounding pine trees while an untouched courtyard connects the two buildings, allowing an interaction with nature.










Juxtaposing the exposed concrete facade of the theatre, the hotel is defined by four geometric ‘ribbons’, wrapping the building to create a multitude of transitional spaces, allowing the guests privacy and a unique experience of the surrounding natural environment. On the upper level this overlap of the façade creates courtyards for moon viewing and relaxation in complete privacy – this experience further enhanced by built in hot tubs. The deck is intended to be extensively used becoming an area that allows the control of light and air entering the building. The glistening façade is composed of a series of ceramic panels, supported by a lightweight steel frame, rendering a scale to the community. Thus, these simple gestures turn an otherwise monumental architectural typology into one of humanistic sensibilities, finding ways to still grant the user an isolated experience of nature in a rapidly urbanising setting.




Project: Heyri Theatre and Hotel / Location: Heyri Art Valley, Beopheung-ri, Tanhyeon-myeon, Paju-si, Gyeonggi-do, Korea / Architect: BCHO Partners (Byoungsoo Cho) / Project team: Lee Jung-hui, Kang Young-jun, Yang Hong-joon, Kang Woo-hyun, Kim Sara, Angel Tenorio, Kim Sung-hwa, Park Ha-hyeok / Use: Performance hall / Site area: 1,155.1m² / Bldg. area: 572m² / Gross floor area: 2308.5m² / Bldg. coverage ratio: 49.52% / Gross floor ratio: 86.62% / Bldg. scale: two stories below ground, three stories above ground / Structure: Reinforced Concrete / Completion: 2011 / Photograph: ©Wooseop Hwang (courtesy of the architect)


































