A Living Box Enclosed in a Farmhouse‘s Earthen Wall


In the historic center of Sasamón, Burgos, a former pigsty has been converted into a house. Set within a narrow street defined by thick stone and adobe walls, the project preserves the exterior while transforming only the interior structure into a contemporary dwelling. Maintaining the identity of the farmhouse and the continuity of architectural heritage, the house now accommodates new modes of living with added functionality and flexibility.




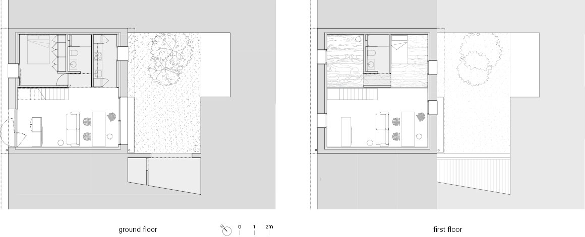
The existing façade, a defining element of the village fabric, was carefully restored. The preserved walls retain the memory of the place while providing a solid frame for new habitation. The interior was completely emptied, and a laminated timber box was inserted within. Partially braced against the outer walls, the box for a living occupies roughly half of the overall volume, establishing a balance between old and new, roughness and warmth, mass and lightness. The resulting interstitial space creates a layered relationship between the retained envelope and the new interior. Rooms are connected or separated by large sliding and hinged doors made from the same timber as the inserted structure, allowing for visual continuity and functional flexibility. Energy performance was also a priority. A continuous insulation layer was added to the inner face of the shell, backed by lightweight partitions and finished with the same single-coat mortar used on the exterior. This ensures thermal continuity and material consistency. The roof was entirely rebuilt in laminated timber, retaining the traditional beam-and-rafter system while enhancing precision and structural stability.













The prefabricated timber box was produced locally in modular components, reducing transportation-related environmental impact. Finishes were limited to essential materials: exposed structural timber, mortar, and a clear resin poured over a radiant heating slab. This restraint and clarity define the project. The completed house presents a bright, contemporary interior that reinterprets rural architecture through a simple and legible structure. The adobe walls that bear witness to the past remain visible as climatic and cultural boundaries, while domestic life is reorganized independently within. The gap between old and new functions as a buffer that regulates circulation, visual depth, and daylight. In doing so, the building accumulates time while embracing new light.
Project: House Within a House / Location: Sasamón, Burgos, Spain / Architect: MADE.V arquitectos / Author: Álvaro Moral García, Daniel Gónzalez García / Co-author: Ana Doyague González, María Esteban Carrasco / Construction: Construcciones Escribano / Structure: Medgon / Carpentry: Javier Ramos Rodriguez Carpintería de Madera / Metalwork: Metalbur / Kitchen design and installation: Cocibur / Use: Housing / Built-up area: 60m² / Gross floor area: 102m² / Usable floor area: 88m² / Plot size: 128m² / Completion: 2025 / Photograph: ©Javier Bravo (courtesy of the architect)


































