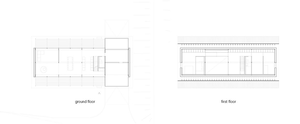
A Lightweight Structured Longhouse Built with Cost-Effective Materials

In its typology, the new building follows the traditional, one-room-deep longhouse. The main rooms take up the entire width and are aligned lengthwise. The ends of the house are dedicated to different functions: the living area in the south, the garage and storage rooms in the north. As is typical for Oberberg, a solid base, here made of concrete, lifts the living space slightly above the naturally grown slope to protect it from the weather.





The overhang of the pitched roof is designed for both summer and winter sun stands. In summer, it protects the living space and the verandas along the length from overheating. In winter, the double-glazed façade enables the solar gains to enter the living space and activate the floating cement screed as a night storage. With its reduced mass, the ventilated roof cladding supports summer thermal insulation and, together with the large roof openings, provides effective night cooling.
The alternation of light and shadow enlivens the roof cladding, made of finely structured corrugated iron, and creates a soft surface as a visual link between grassland and sky.
The living room in the middle of the building reaches up under the roof and forms the central common room, from which the bedrooms and children’s bathroom, and the master bedroom on the upper floor, are accessed. A steel walkway with a translucent grating connects the two independent units and leads to the common gallery in the two-story living area.







The steel and wooden skeleton construction is reversibly joined at all points. The columns are positioned along the eaves at an axial distance of 5.4m. The main girders are screwed to the columns so as to carry the slim-dimensioned wooden beams of the ceilings, which remain visible for a warming aesthetic effect. The polished interior screed requires no additional flooring on top. The construction of the veranda is aligned with the finer metrics of the façade. The sleek columns support the substructure of the larch wood deck and the wooden beams of the roof overhang.
The result is an architecture that focuses on the essential minimum to maximum effect.

Project: House D6 / Location: Nümbrecht, Germany / Architects: Sven Aretz, Jakob Dürr / Gross floor area: 300 m² / Living space: 215m² / Construction: steel, timber / Completion: 2019 / Photograph: Luca Claussen Fotografie

































