A Panorama Connecting to the Topography and the City Landscape

At the edge of San Sebastián, where the foothills of Mount Ulia meet the city, the Gastronomy Open EcosystemGOe is set on a sloping site with a 10-meter height difference. Developed by the Basque Culinary Center, the 9,000m² hub brings together start-ups, researchers, and chefs in one place. It extends the center’s work beyond education, opening it to the wider city and industry.
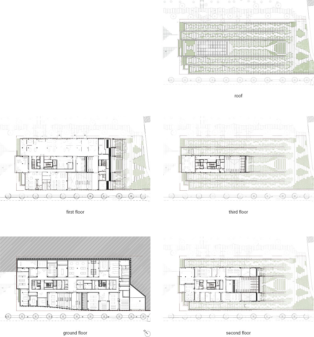
Rather than reshaping the terrain, the building follows it. The ground steps up with the slope and continues to the roof, where the park is carried over the building. People move across the roof as part of the public path, connecting to the Camino de Santiago and opening views toward the Cantabrian Sea. The project keeps the ground porous and continuous, allowing the park and the building to read as one.






At street level, the mass pulls back to form a covered plaza directly linked to the pilgrimage route. This space works as an entry point and a place to pause. Above, terraces and recessed openings reveal activity inside—kitchens, labs, and classrooms—without fully exposing them. The building addresses the city not as a closed object, but as a working interior that can be seen in parts.
The Gastro Hall runs from the ground floor to the roof and organizes the building. A broad stair connects the levels and doubles as seating for talks and events. As people move up, they pass kitchens and labs, where daily work becomes part of the experience. The sequence continues to an auditorium and to public terraces, ending at a restaurant on the top floor.







Workspaces are planned for change. Kitchens, labs, and teaching areas are open and can be reconfigured as needs shift. Materials follow use: durable, easy-to-clean finishes in production areas; wood and stone in public spaces to create a more comfortable setting. Research, making, and gathering take place side by side.
The project is structured on a grid derived from kitchen modules. This order extends from the plan to the façade and up to the roof, tying interior and exterior programs together. Terraces, plazas, and paths form a continuous field across the building. In this way, GOe connects the city and the landscape through use rather than image.


Project: Gastronomy Open Ecosystem / Location: San Sebastian, Spain / Architect: BIG – Bjarke Ingels Group / Partner-in-charge: Bjarke Ingels, João Albuquerque, Ole Elkjær-Larsen / Project leader: Matthew Reger, Isabel Sanchez del Campo / Project manager: Mireia Sala Font, Esther Diaz Salas / Project team: Hanna Ida Johansson, Jose Gomez Carbonell, Klaudia Szczepanowska, Natalia Politano, Pietro Saccardi, Wiktoria Martyna, Kolakowska, Patrycja Tomaszewska, Gonzalo Coronado Maceda, Adelardo Domingo Ruiz, Allegra del Bono Venezze, Candela González del, Tánago, Carmen Ortega Hernaez, German Otto Bodenbender, Gian Marco Prisco, Kareena Lily Pinto, Martina Tosarello, Otto Hernéndez-Palacios, Pernille Uglvig Sangvin, Dino Vaindirlis, Maria González Rodríguez, de Biedma, Nicolas Bachmann Bellido, Petros Palatsidis, Uri Lewis Torres / Big engineering: Andrea Hektor, Johan Fredrik Lindqvist / BIG landscape: Laura Font Gallart / BIG sustainability: Tore Banke, Cosmin Paduraru / Collaborators: Gleeds, Tricon, Play-Time & Fusao / Client: Basque Culinary Center / Use: education / Gross floor area: 9,090m2 / Completion: 2025 / Photograph: ©Francisco Tirado (courtesy of the architect)

































