Nature Revealed in the Gaps

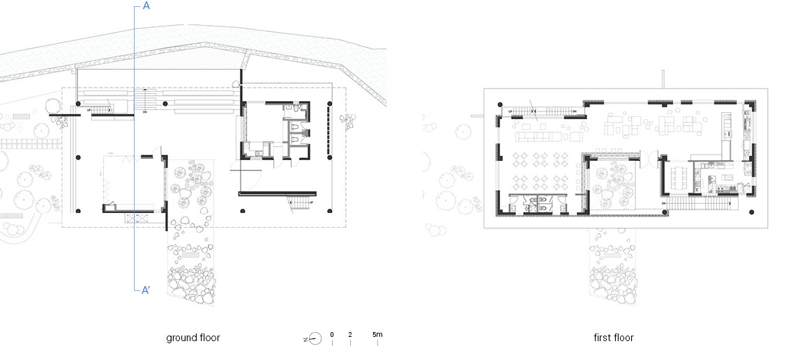
Cafe Po.oak in Pocheon begins from an unpromising ground: a plot sunken roughly three meters below its surroundings, tightly hemmed in by a haphazard strip of restaurants. Even the only borrowed view—the mountain to the east—has been interrupted by transmission towers, while incremental development continues to erode the area’s sense of natural clarity. Rather than projecting the building outward in search of scenery, the architect chose to make the site itself perform as landscape.
Entering the first-floor pilotis, visitors encounter a monumental gate made of hot-rolled steel plate. It refuses a full reveal. Instead, it releases the courtyard in fragments—glimpsed through narrow gaps—so that arrival becomes a calibrated act of curiosity. The courtyard, described by the architect as a form of “hidden nature,” is composed simply of birch, stone, and moss. Against the dry neutrality of exposed concrete, and within the sharp contrasts of light and shadow, the presence of living material becomes more, not less, pronounced.







The project’s formal grammar is direct. Two heavy horizontal bands hold the composition, while brick infill between them produces the optical effect of a volume suspended above the ground. On the second floor, upper beams are used to keep the ceiling plane continuous, extending visually toward the exterior so the gaze is drawn outward without interruption.
A quieter order runs through the building: a 0.4-metre horizontal module derived from dividing standard plywood formwork into thirds. This interval becomes a dimensional rule that scales up across the interior—informing openings and furnishings, from tables and benches (0.4 m) to partitions (1.6 m) and full wall lengths (4.0 m). The repeated lines, finely inscribed across the concrete surfaces, temper the mass’s heaviness. What might have read as a single blunt block instead begins to resemble something assembled—precise, layered, and carefully calibrated.









View and enclosure are treated as a sequence rather than a single decision. Partition walls and extended slabs alternately screen and release the outside, producing a shifting set of scenes depending on where one pauses and looks. Once concrete becomes the dominant ground, even the disorder beyond the boundary recedes into a controlled backdrop—present, but no longer visually intrusive.
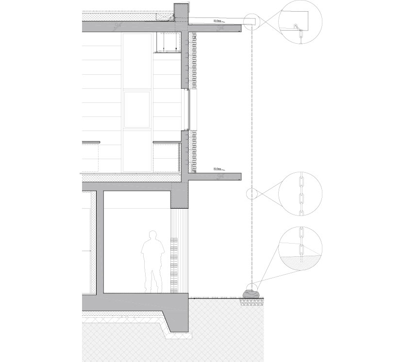
To preserve the impression of the “floating” horizontal band, the roof drainage is detached from the building and resolved as rain chains. In wet weather, water runs down the chains and disappears among stones and plants, turning rainfall into an audible register of nature. It is a small gesture, but it completes the project’s argument: atmosphere is not an after-effect but a constructed condition. By selectively concealing and revealing its surroundings, and by letting greenery emerge against concrete’s deliberate dryness, Po.oak becomes a place for a brief pause—close to nature, yet shaped through architectural restraint.

Project: Po.oak / Location: 685-20, Jugyeopsan-ro, Soheul-eup, Pocheon-si, Gyeonggi-do, Republic of Korea / Architects: SN Architecture (Sangeun Kim, Eunjin Kim) / Structural engineer: Eden Structural Consultant / Electrical, mechanical and fire engineer: Jinwon Engeneering / Landscape architect: Lab D+H / Contractor: Taeyoun D&F Architect / Client: Sunja Lee, Younsung Lee / Use: neighborhood living facility type 1 / Site area: 1,431m² / Bldg. area: 349.39m² / Gross floor area: 377.52m² / Bldg. coverage ratio: 24.42% / Gross floor ratio: 26.38% / Bldg. scale: two stories above ground / Structure: RC / Exterior finishing: exposed concrete, concrete brick / Interior finishing: exposed concrete, VP paint, plywood, tile / Design: 2018.6~2020.4 / Construction: 2020.5~2021.5 / Completion: 2021 / Photograph: ©Youngsoon Kim (courtesy of the architect)


































