A reinterpretion of traditional hierarchical organization bridging context
Tomohiro Hata Architect & Associates


In the city of Muko, on the outskirts of Kyoto, there is a neighborhood where farmland and bamboo groves stretch across the landscape. Historically, this area was dotted with farmstead dwellings defined by stone boundary walls, in which a main house and several auxiliary structures clustered together to form a single living unit. In recent years, however, rapid urbanization expanding from central Kyoto has led to the demolition of many of these traditional farmhouses, replaced by housing forms largely disconnected from the local environment. Within this fragmented landscape, designing a new house required negotiating a balance between a historically rooted way of life and contemporary living.






Traditional farmstead dwellings are defined by two key characteristics. One is an expansive living domain that extends into the surrounding agricultural land; the other is a hierarchical spatial organization structured around a main house. Deeply embedded in local ways of life, these characteristics are closely tied to the region’s history and have shaped its cultural identity. By contrast, contemporary residential architecture tends to dissolve rigid hierarchies, favoring more flexible and continuous spatial relationships. In response, the house is composed of several small, independent residential volumes that are interconnected and collectively embrace a shared living domain organized around a courtyard.














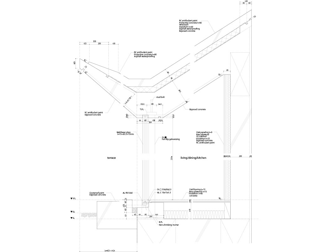
The house adopts a typical roof form, articulated as a continuous band that rises and falls in response to the spatial sequence. Openings carved between these shifts in the roofline allow daylight to penetrate the interior, introducing a subtle sense of ingenuity.
Architecture forges a powerful connection between people and place. Serving as a mediator between people, place, and time, the House in Muko offers a thoughtful response to the site’s history and evolving patterns of living, presenting an example of residential architecture that respects the past while accommodating the demands of contemporary life.

Project: House in Muko / Location: Kyoto, Japan / Architects: Tomohiro Hata Architect & Associates / Project management: Tomohiro Hata Architect & Associates / Structural engineer: Takashi Manda Structural Design – Takashi Manda / General contractor: Asa Kenchiku co., ltd. / Use: house / Site area: 472.69m² / Bldg. area: 280.15m² / Gross floor area: 294.41m² / Completion: 2023 / Photograph: ©Toshiyuki Yano (courtesy of the architect)

































