Points, lines, planes, and small volumetric elements adapted for vital façade rhythm

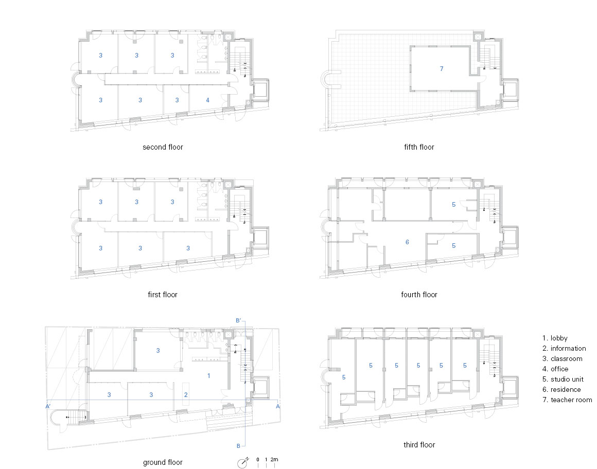
Remodeling is not simply a matter of repair. More often, it is the act of laying a new program over an existing frame—negotiating what must remain, what can be adjusted, and what needs to be legalised. The Sinchon ECC Building remodeling began with a clear transformation: a six-storey building completed in 1988 and long used for retail units and studio apartments was to become a hybrid facility in which the client’s residence and an English kindergarten would coexist. Accommodating two programs of different character within one envelope required the project to address physical intervention and administrative normalisation at the same time.
The building’s most immediate limitation was practical: despite its height, it had no elevator. An external lift was therefore added, while the studio-oriented floor plates were reworked to suit a kindergarten’s spatial and regulatory requirements. Renewing the aged façade—so that it could support the building’s new identity—was another essential task. Administratively, the conditions were more intricate. Over many years the building had been altered informally, leaving parts of its existing condition unclear. Before anything else, the project had to document and rectify these discrepancies and bring the building into compliance with current codes. In other words, the work demanded both construction and institutional repair.
Each issue might have been solvable in sequence, but what ultimately defined the project was time. Because the kindergarten was scheduled to open in February, design began in November. The entire process—design, construction, and approvals—was compressed into roughly three months.






Under this pressure, the work proceeded through parallel tracks. Interior construction was undertaken independently by a kindergarten interior firm, while the architecture team concentrated on the external envelope, the elevator addition, and the administrative process. Material and construction choices were likewise governed by schedule. Given winter conditions, systems suitable for dry construction were prioritised; and to reduce on-site labour and uncertainty, key components were fabricated off-site and assembled on location.
The site itself further narrowed the project’s options. Facing the street directly, it is long in elevation but shallow in depth, and the existing building already occupies the plot almost completely. With no setback to work with, expansion beyond the elevator was effectively impossible. Rather than attempting a radical change of form, the project therefore sought to establish a new order by recalibrating the façade’s parts.
The design premise was straightforward: keep the overall form restrained, but avoid monotony. Points, lines, planes, and small volumetric elements are combined to give the façade rhythm, while functional components—the elevator core, elliptical columns, and the basement entry—are treated as distinct objects. These elements do not simply sit within the original outline; they project subtly beyond it, creating new visual relationships on top of a simple mass. The result is a building that reads as calm from a distance, yet reveals layered articulations at close range.







Not every detail could be executed exactly as intended within the schedule and budget. Certain areas required on-site decisions and fine adjustments. Meanwhile, administrative procedures consumed significant time and energy: clarifying the building’s existing condition, securing permits for major renovation works, and undergoing reviews by the Fire Department and the Office of Education for kindergarten approval. Aligning different standards and coordinating their sequence became, in effect, another structural axis of the project.
This remodeling is a case of reorganising an existing building’s function under tight constraints. Remodeling can add new value to existing architecture, renew the urban streetscape, and—through reuse—carry environmental meaning. In a low-growth context, its relevance only increases. For this trajectory to remain sustainable, however, the project also points to a parallel necessity: gradual reform in the systems of regulation and administration that make such transformations possible.
Project: Sinchon ECC Building Remodeling / Location: Daesin-dong, Seodaemun-gu, Seoul, Republic of Korea / Architect: JYA-Rchitects (Youmin Won, Janghee Jo) / Project team: Hyeonsu Kim, Byungik Yi / Structural engineer: Hangil / MEP engineer: Jungyeon / Contractor: Design Hub / Use: commercial, residential facilities / Site area: 351.1m² / Bldg. area: 201.44m² / Gross floor area: 1,154.67m² / Bldg. coverage ratio: 57.37% / Gross floor ratio: 264.36% / Bldg. scale: one story below ground,six stories above ground / Height: 19.3m / Parking: 7 cars / Structure: RC / Exterior finishing: aluminum sheet, curtain-wall double glass / Interior finishing: paint, porcelain tile, solid wood flooring / Design: 2024.10~2024.11 / Construction: 2024.12~2025.3 / Completion: 2025 / Photograph: ©Kyung Roh (courtesy of the architect)

































