A Multi-Layered Public Space Open Along the Urban Axis

Located in central Berlin, the Sony Center at Potsdamer Platz is a mixed-use complex combining commercial, cultural, residential, and office functions. Comprising eight buildings with a total floor area of 113,000㎡, the complex has been noted for its modern architectural features, including a glass-and-steel dome, and since its completion in 2000 has provided a range of indoor and outdoor spaces, functioning as an important public and commercial destination in the city. The renovation carried out here is based on spatial regeneration and placemaking. Rather than simply renewing the exterior or repairing existing spaces, it focuses on creating new public spaces that connect the city, the building, and its users. By making full use of the existing structure and program, the project reorganizes spaces in line with the urban context and improves accessibility and usability. This reflects the role of the complex has continuously developed within changing urban conditions.


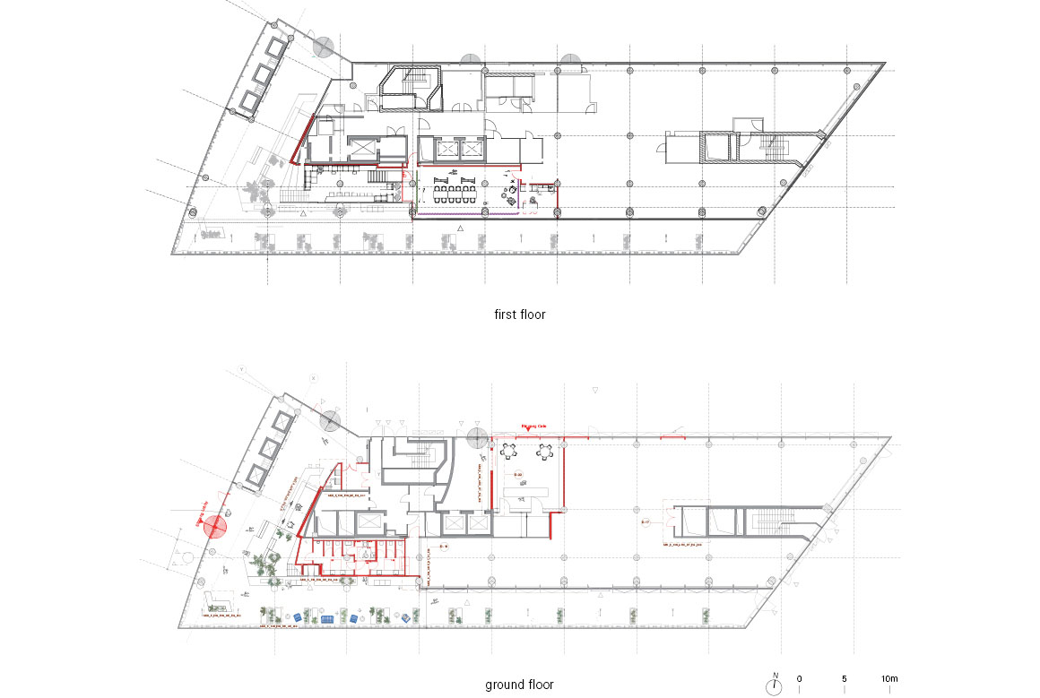
At the center of the transformation is Lobby D. Expanded to a double-height space, the lobby opens toward Tiergarten, with a 21m-high and 60m-wide glass façade that brings views of the park into the interior. The space is finished with oak surfaces, terrazzo flooring, and climbing plants in a winter garden, introducing natural elements indoors. A large oak staircase forms the focal point, and the former circulation space has been reconfigured into a multi-layered environment for work, meetings, and workshops. Food, beverage, and retail spaces on the ground floor further enhance its public character and accessibility.
The renovation involved structural modifications such as the removal of the internal façade and adjustments to the mezzanine level. These changes allow a continuous connection between the lobby and the former conservatory. In addition, a large-scale wall graphic and various spatial arrangements strengthen the visual identity while supporting flexibility and public use.
Other improvements within the complex include the conversion of an existing passage into a bicycle parking area, linking pedestrian routes with nearby public transport. In subsequent phases, other lobbies and shared spaces beyond Lobby D will be updated, gradually softening the boundary between interior and urban space.





As part of the urban axis of Center Potsdamer Platz, Lobby D focuses on the point of connection between the city and the building. The open entrance and newly secured public space, together with a multi-layered spatial system that accommodates a range of activities, create an active point where people gather and intersect.



Project: Lobby D, the Center Potsdamer Platz / Location: Das Center Potsdamer Platz, Berlin, Germany / Architect: Kinzo / Existing building architect: Helmut Jahn / Client: Oxford Properties Group / Typology: placemaking, revitalization, building in existing context / Use: lobby / Gross floor area: 930m² / Completion: 2022 / Photograph: ©Schnepp Renou (courtesy of the architect)

































