Modernist geometries give rhythm and fun to the ILMA showroom

Ilma means “weather” or “air” in the Finnish language. Ilma Store, Cheongdam, was opened while “The Ilma” brand development was in full swing, so the identity of the space had to be determined and expressed with great care. The brand and space identity of The Ilma was based on modernist principles; in particular, the designers focused deeply on the origins of modernism. An artwork by the constructivist artist El Lissitzky – one of the defining pieces which helped found the modernist movement – served as inspiration for the architects. The designers introduced the geometric figures of the artwork into the space by arranging and overlapping elements of textural contrast, with the expectation of expressing a clear identity for the space.




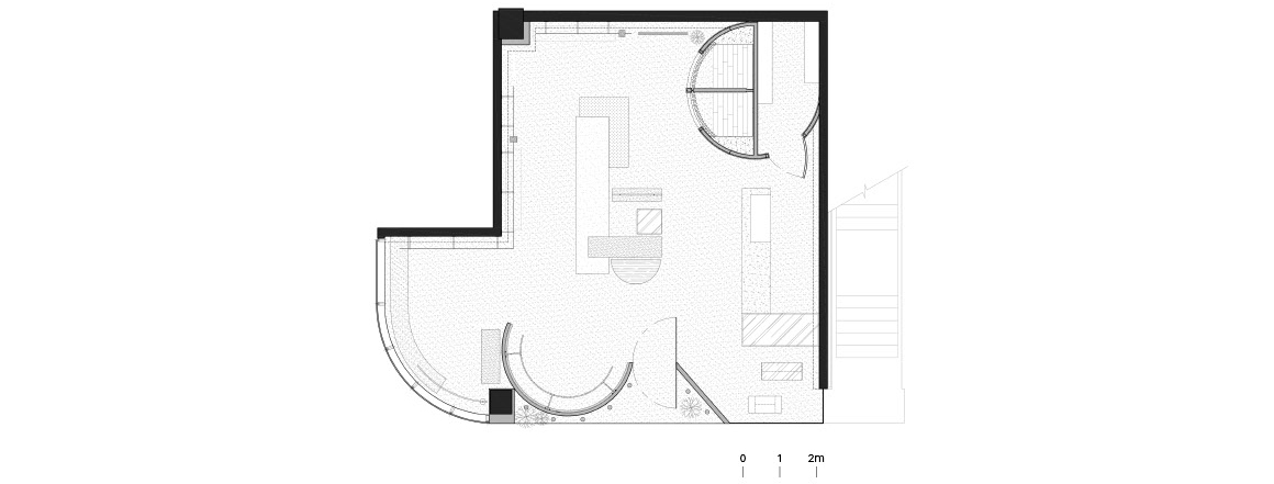
There are three important features of the design. Firstly, that of contrast in texture and form. Contrasts are vividly revealed in forms and materials, beginning with the entrance itself. The form of the façade is expressed in an abstract, dynamic, style with an arrangement of round shapes and straight lines which captivate the interest of the visitor, welcoming them inwards. Finishing materials also add volume to the space: round columns of white oak wood appear to overlap between clear glass and a rough stone-powder-treated paint, which gives the impression of heaviness and mass.
In addition, the exterior of the round mass was treated with a rough, cold, finish of stone-powder while the interior was finished neatly with warm white oak, forming a distinct contrast between the inside and the outside.



Material contrasts between walls and furniture repeat continuously in this overlapping way. Four finishing materials – rough stone powder, clear white glass, warm wood, and cold metal – interconnect to express a radical contrast in temperature.
The second crucial design element derives from the idea of an embrace, and is expressed through texture on the inside walls. Beginning with the ceiling and moving down along the walls in an ㄱ-shape is a bumpy textured finish. Starting at the floor level and moving up along the walls in the ㄴ-shape is a smooth surface finished with concrete hardener. In the center is a curved, round mass. The effect conveyed is one of a warm, comfortable, embrace within the interior.
The third design element makes use of geometric shapes in different sequences.
In each sequence, a rounded shape, a rectangle, a curved surface, planes and lines – in the form of walls, columns, hangers, furniture, shelves, chairs, counter and fitting room – provide rhythm and fun to the space as they overlap and tangle with one another.




































