A Red-Clad Monolithic Volume Reinterpreting Local Farmhouse


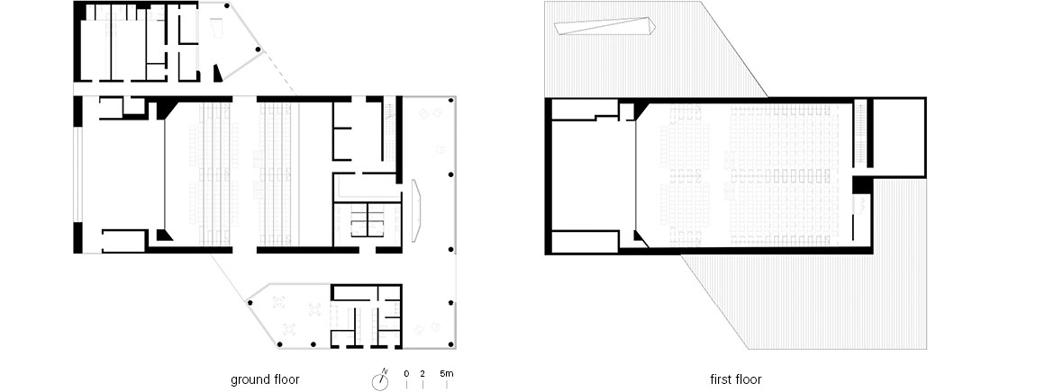
Located in Albignasego, near Padua in Italy’s Veneto region, the auditorium was realized through an international design competition organized by the municipality in 2018. The project took shape alongside the development of a new public park as part of a broader urban regeneration strategy. The building stands adjacent to a 19,000㎡ park. With a total floor area of approximately 1,500㎡, the 432-seat main hall is accompanied by a lobby and rehearsal rooms arranged in sequence, allowing pre- and post-performance circulation to flow naturally toward the surrounding park.








Beneath its gabled roof, the single monolithic volume reinterprets the region’s traditional rural farmhouses in a contemporary language. The texture of historic brick construction is translated into a modern cladding system, giving the building a strong and distinct identity. This approach mediates between the surrounding landscape and the adjacent urban fabric while narrating the site’s temporal layers through a contemporary architectural expression. Positioned at the threshold between town and countryside, the building engages its context through scale and materiality, achieving a refined balance between interior and exterior. Large openings frame outward views, reinforcing visual continuity with the neighboring park. The entrance sequence unfolds through alternating compression and expansion, gradually heightening the visitor’s perception. Upon reaching the main hall, the full scale of the performance space is revealed at once, creating a dramatic spatial climax. The auditorium is equipped with a precisely engineered acoustic system and a flexible stage configuration capable of accommodating diverse performing arts programs. Interior walls are articulated in wood, generating a rhythmic three-dimensional expression that establishes a modern yet warm atmosphere.








The Albignasego Auditorium Theater extends beyond its role as a performance venue. The lobby functions as a multipurpose social space for events and gatherings, while the integration of a café and independent rehearsal rooms ensures that the building remains open and active within the local community. The landscape design continues the dialogue with the adjacent park, employing native plantings that reflect seasonal change and soften the boundary between architecture and nature.
More than formal cultural infrastructure, the auditorium operates as an inclusive device that welcomes the community and re-inscribes collective memory into contemporary spatial experience. By combining contemporaneity, functionality, and social sensibility, the project expands public cultural architecture into a deeply contextualized experience.


Project: Albignasego Auditorium Theater / Location: Albignasego, Padova, Italy / Architect: MD41 (Fabrizio Michielon, Sergio de Gioia) / Project team: Andrea Tommasin – arch. Alessandro Michielli / Structural engineer: Origine Ingegneria srl / MEP engineer: Mountech Srl / Landscape architect: POOL landscape / Acoustic design: Studio Architetto Eleonora Strada / Contractor: Mu.bre / MEP contractor: SICE / Collaborators: Serramenti Piovanello, Novoferm, Mazzonetto, Tekno coop, Rivo Interior, Celenit, Esse-ci, Decima, Cinearredo, Poloniato, Tesi System, Specchi Iva, True Design, Bonello pubblicità, Zanette Srl / Client: Municipality of Albignasego / Use: theater / Site area: 19,000m² / Gross floor area: 1,500m² / Completion: 2025 / Photograph: ©Tobias Kaser (courtesy of the architect); ©Alessandra Bello (courtesy of the architect)



































