Industrial heritage gaining a new urban layer


The urban regeneration project in Sestao, Spain, aimed to transform the environment surrounding the old blast furnace. After the rest of the steelworks was dismantled, the only remaining furnace gradually became reconnected with newly inserted architectural elements, while the surrounding grounds were revitalized into living green spaces. Dormant layers of history were thus rewoven into the city, restoring vitality to what had once become a dark, isolated island within the urban fabric.
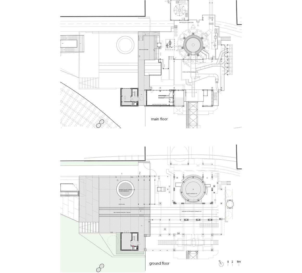
Constructed in 1959, Blast Furnace No. 1 originally formed a structural and functional complex together with its twin furnace, built a year earlier. However, the second furnace was demolished in 1992, and Furnace No. 1 ceased operations on February 28, 1995. Following years of degradation, it was declared a Cultural Monument in 2005 and subsequently underwent partial restoration.







Today, the blast furnace stands at the heart of a newly created urban park. This transformation began in 2018, when the land surrounding the furnace was transferred to the Sestao City and designated as parkland, in accordance with urban-planning regulations applied to the nearby ArcelorMittal steelworks — the successor to the former complex. To enhance the site‘s cultural value, the rehabilitation included: a visitor tower equipped with stairs and an elevator; a platform connecting to the furnace’s decks; a sheltered porch; and an entry plaza intended for events and performances. The redesign of the site plan also reinstated segments of the old railway tracks, and traced the footprint of the demolished twin furnace. Materials such as exposed metal framing, brick cladding, and metal railings — chosen to echo the industrial character of the original structure — ensure a harmonious integration with the existing furnace. The tower is positioned to the side so as not to obstruct the frontal view, and the platform aligns with the original geometry, minimizing direct intervention on the historic facility.






Because the dismantling of the steelworks removed the surrounding structures and the railway lines that once connected to the furnace, the blast furnace became isolated and incomplete, almost like a technical drawing revealed in cross section. As an industrial facility designed solely for production, its complex geometry — with abrupt level changes, physical obstacles, and areas that do not meet current safety standards — created significant challenges for reuse and public access. The intervention addressed these challenges by reorganizing circulation, ensuring exterior access and visitor safety, and making the structure accessible to the public. Now reborn at the core of the linear park, this urban node adds a new layer to the long historical trajectory of this emblematic industrial heritage.

Project: Access and Urbanization at the Sestao B.I.C. Blast Furnace No. 1 / Location: Sestao, Spain / Architect(s): Garitano Arquitectura (Ramon Garitano Garitano, Simon Garitano Ruiz de Azua) / Collaborator(s): Engineering_GE asociados; Structure_Luis Saldaña Goñi; Technical architect_Julio Lopez de las Huertas Telleria / Builder: UTE VICONSA S.A-KARBI S.L.U / Client: Ayuntamiento de Sestao. SESTAO BERRI S.A.M.P. / Use: access, urbanization / Gross floor area: interior_338m², exterior_667m² / Completion: 2023~2024 / Photograph: ©Jose Manuel Cutillas (courtesy of the architect)


































