Creating a Forgotten Connection with the Neighbourhood
Shigeru Aoki Architect & Associates

The project was to renovate a house in a typical residential area in Japan.
The client’s request was to “renovate and make a house with memories” and “two parking lots in parallel” and “do not need large windows”.
For this renovation, “Reflective thinking” was so important that the architect wanted to create a forgotten connection between the environment and the house.








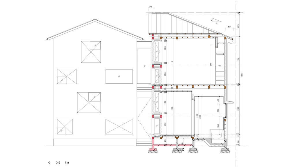
One of the client’s requests, securing two parking lots in parallel was carried out by cutting the existing building in the middle and rotating one of the ridges 90 degrees for relocation.
Privacy has been a major issue. As the residential area was initially developed on a small scale in line for the housing needs of the baby boomers, neither the cityscape nor the privacy was taken into consideration. Needless to say, the existing building couldn’t provide the external environment to the dwellers.
“Double Skin” was added to the 45cm space between the parking lot and the building as an environmental adjustment device.






Project: Double Skin House / Location: Oita-shi, Oita, Japan / Studio: Makoto Sato – Shigeru Aoki Architect & Associates / Site area: 100.12m² / Bldg. area: 50.10m² / Gross floor area: 89.19m² / Completion: 2018.3 / Photograph: Hiroshi Ueda

































